Vergleiche Einträge

Nähe Greetsiel! Gepflegtes Einfamilienhaus mit Garage, Gartenanlage, Terrasse und Blockhaus in ruhiger Lage!

26736 Krummhörn, Uttum
Kaufpreis 159.000€
  • Icon
    Immobilien-Nr.
    E91801
  • Icon
    Grundstück
    898 m²
  • Icon
    Wohnfläche
    160 m²
  • Icon
    Baujahr
    1985
  • Icon
    Schlafzimmer
    4
  • Icon
    Badezimmer
    2

Jetzt Exposé anfordern

Beschreibung

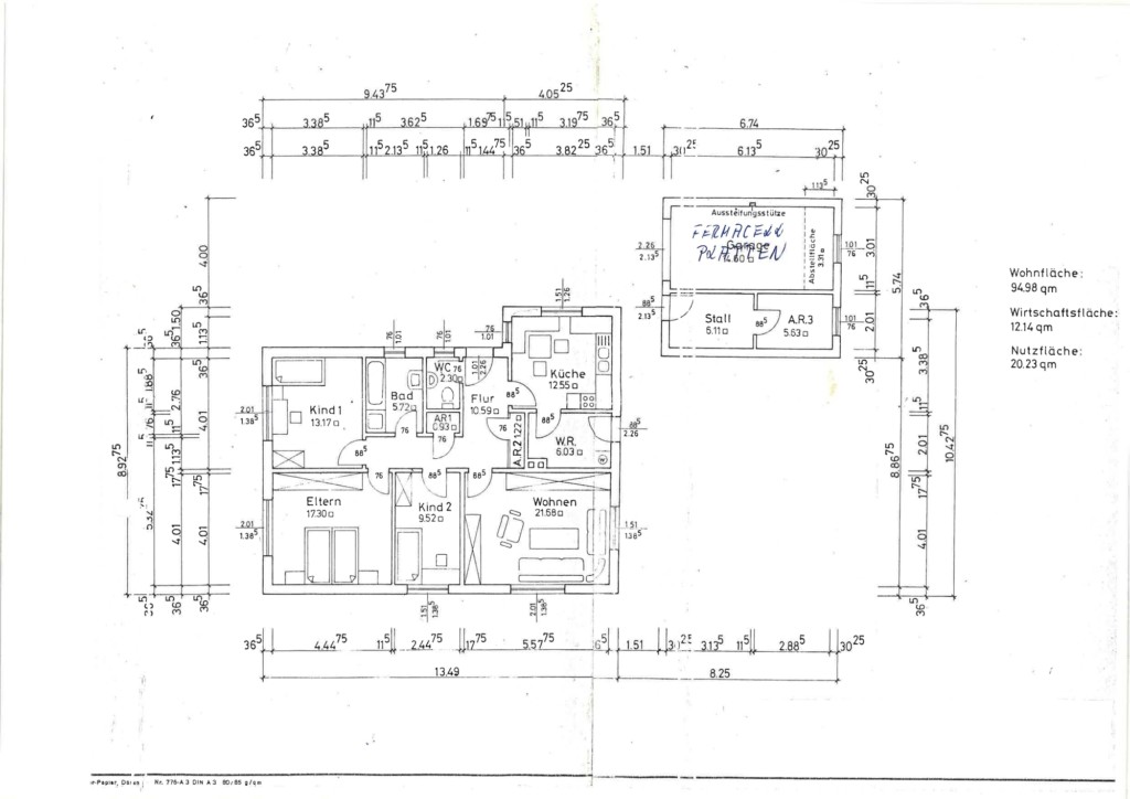
Dieses gepflegte Einfamilienhaus wurde 1985 in Massivbauweise mit einem Satteldach erstellt und liegt in einer ruhigen Wohnlage von Uttum. Das Grundstück bemisst ca. 898 qm und ist pflegeleicht angelegt. Die Räumlichkeiten sind hell & freundlich und strahlen eine gemütliche Atmosphäre aus. Beheizt wird das Objekt durch eine Gas-Zentral-Heizung. Die weißen Kunststofffenster sind isolierverglast und mit Jalousien ausgestattet. Hervorzuheben ist die Möglichkeit des „ebenerdigen Wohnens“ und die Nähe zum Fischereidorf Greetsiel.

Durchgeführte Renovierungen/Besondere Ausstattungsmerkmale:

-2004 Heizung erneuert, wurde vor Kurzem technisch überholt
-Nähe Greetsiel
-Großzügige Garage

Grundstück: ca. 898 qm (Garage, Blockhaus, Terrasse, Gartenanlage, Teich)

Gebäude:
EG: Flur/Diele, Küche, HWR, Wohnzimmer, Elternschlafzimmer, Gästezimmer, Vollbad, Gäste WC

OG: Flur/Diele, 2x Schlafzimmer, Duschbad mit WC,

Gesamt: Wohn-/Nutzfläche 160 qm

Lage und Umfeld

26736 Krummhörn OT. Uttum (Ruhige Wohnlage, Greetsiel ca. 5 PKW-Min. entfernt, Stadt Emden ca. 15 PKW-Min. entfernt, Einkaufsmöglichkeiten in nächster Nähe, gute Verkehrsanbindung zur A-31, gute ÖPNV)

Lage und Umfeld

Uttum

Courtage

5,95 % vom Kaufpreis inkl. ges. MWSt auf den Kaufpreis ist mit Zustandekommen des Kaufvertrages (notarieller Vertragsabschluß) verdient und fällig. Die Vermittelnden und/oder Nachweisenden, BS Immobilien Kontor Büürma GmbH und ggf. deren Beauftragter, erhalten unmittelbaren Zahlungsanspruch gegenüber dem Käufer (Vertrag zugunsten Dritter, § 328 BGB). Alle Angaben sind ohne Gewähr und basieren ausschließlich auf Informationen, die uns von unserem Auftraggeber zur Verfügung gestellt wurden. Wir übernehmen keine Gewähr für die Vollständigkeit, Richtigkeit und Aktualität dieser Angaben. Die Grunderwerbsteuer, Notar- und Grundbuchkosten sind vom Käufer zu tragen. Im übrigen gelten unsere allgemeinen Geschäftsbedingungen. Irrtum und Zwischenverkauf vorbehalten.

Energieinformationen

Energieeffizienz

  • Energieausweis-Art: Verbrauch
  • Energieausweis gültig bis: 04.01.2029
  • Endenergieverbrauchskennwert: 154,40 kWh/(m²*a)
  • Energieeffizienzklasse: E
  • Jahr der energetischen Sanierung: 2004
  • Primärenergieträger: Gas
  • Energieausweis-Gebäudeart: Wohngebäude
  • Heizungsart: Zentralheizung
Energieeffizienzklasse
E
Endenergieverbrauchskennwert
154,40 kWh/(m²*a)
  • A+
  • A
  • B
  • C
  • D
  • 154,40 kWh/(m²*a) | Energieeffizienzklasse E
    E
  • F
  • G

Weitere Details

  • Heizungsart: Zentralheizung
  • Courtage: 5,95 % vom Kaufpreis inkl. ges. MWSt
  • Separate WCs: 1
  • Terrassen: 1
  • Zimmer insgesamt: 5
  • Befeuerung: Gas
  • Zustand: gepflegt
  • Immobilie ist verfügbar ab: nach Absprache
  • Erstellt am: 2019-03-06 09:51:03
  • Verkauft am: 2019-07-03

Grundrisse

  • Erdgeschoss
img

ICH FREUE MICH AUF IHRE ANFRAGE

Anfrage zu diesem Objekt

Ähnliche Objekte

299.000€

Schlafzimmer: 3Baujahr: 1960m²: 150

Icon Grundstücksgröße 623 m²
Objektnr.: E19B48800
299.000€
340.000€

Schlafzimmer:: 1Baujahr: 2026m²: 73

Objektnr.: E19B46000
340.000€

Nicht die passende Immobilie gefunden?

Drucken oder teilen