Bitte geben Sie Ihren Benutzernamen oder Ihre E-Mail-Adresse ein. Sie erhalten einen Link, um ein neues Passwort per E-Mail zu erstellen.
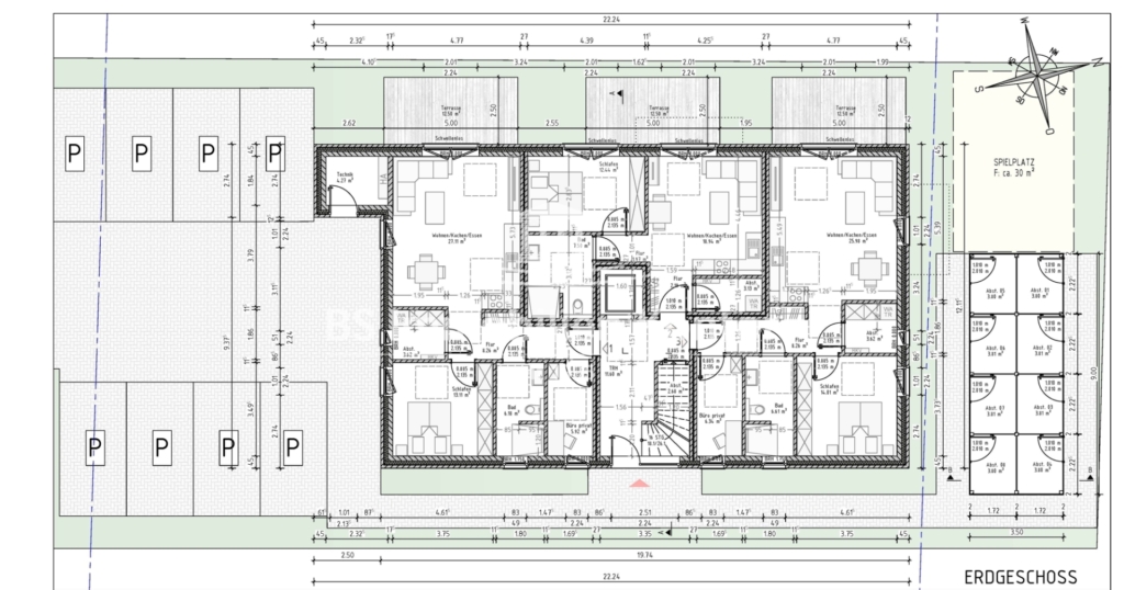
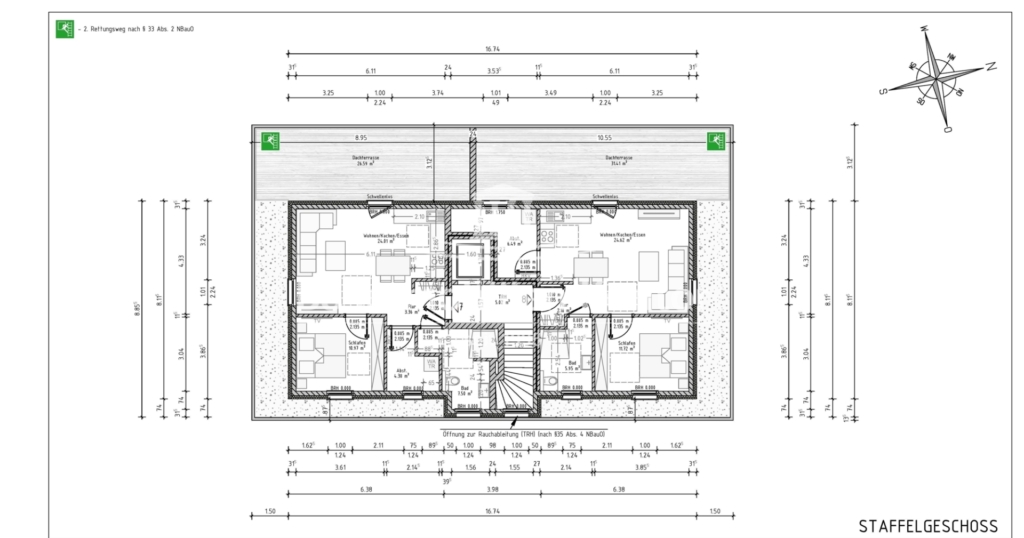
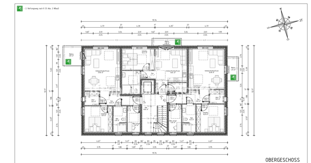
Diese hochwertige Neubau-Obergeschosswohnung wird Sie begeistern. In zentraler Wohnlage von Papenburg entsteht ein modernes Wohngebäude mit ansprechender Architektur und insgesamt acht barrierefreien Eigentumswohnungen für Jung und Alt. Die Fertigstellung ist für das Jahr 2027 geplant, die Ausführung erfolgt schlüsselfertig. Das durchdachte Raumkonzept und die lichtdurchfluteten Wohnräume bieten Wohnkomfort auf hohem Niveau. Der offene Wohn- und Essbereich bildet das Herzstück der Wohnung und überzeugt durch Großzügigkeit und Helligkeit. Ein Balkon sowie die gehobene Ausstattung unterstreichen den exklusiven Charakter dieser Immobilie. Die Beheizung erfolgt über eine moderne Luft-Wärmepumpe. Dreifachverglaste Kunststofffenster mit elektrischen Jalousien sorgen für Energieeffizienz und hohen Wohnkomfort. Alle Einrichtungen des täglichen Bedarfs – Einkaufsmöglichkeiten, Bäcker, Ärzte, Apotheken, Krankenhaus sowie Bildungs- und Freizeiteinrichtungen – sind bequem fußläufig erreichbar. Auf Wunsch kann eine vergleichbare Musterwohnung besichtigt werden.
Aufstellung der Besonderheiten:
-Schlüsselfertige Herstellung 2027
-Dreifachverglaste Fenster mit elektrischen Jalousien
-Fußbodenheizung komplett
-Feinsteinfliesen oder Vinyl-Designbelag gem. Baubeschreibung
-PKW-Einstellplatz
-In allem Räumen SAT u. Lan-Anschluss
-Weiße, hochwertige Innentüren
-Fahrstuhlanlage
Grundstück: Gem. Eigentum
Gebäude: EG: Flur/Diele, Duschbad mit WC, Schlafzimmer, offener Wohn-/Essbereich mit Küchenanschlüssen und Zugang zum Balkon, Abstellraum mit Anschluss für WA/TR,
Gesamt: Wohnfläche ca. 48qm

Schlafzimmer:: 1Baujahr: 2027m²: 68
Etagenwohnung
vor 3 Wochen
Schlafzimmer:: 1Baujahr: 2025m²: 48
Etagenwohnung
vor 8 Monaten
Schlafzimmer:: 1Baujahr: 2025m²: 66
Erdgeschosswohnung
vor 8 Monaten