Vergleiche Einträge

Wolthusen ! Großzügiger Winkelbungalow mit Garage und Terrasse und in ruhiger, bevorzugter Wohnlage !

26725 Emden, Wolthusen
Kaufpreis 205.000€
  • Icon
    Immobilien-Nr.
    E55100
  • Icon
    Grundstück
    689 m²
  • Icon
    Wohnfläche
    165 m²
  • Icon
    Baujahr
    1969
  • Icon
    Schlafzimmer
    5
  • Icon
    Badezimmer
    1

Jetzt Exposé anfordern

Beschreibung

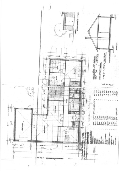
Dieser großzügige Winkelbungalow liegt in einer ruhigen, bevorzugten Wohnlage von Wolthusen und wurde 1969 in Massivbauweise mit einem Walmdach erstellt. Das eingefriedete Grundstück bemisst ca. 689 qm und ist nicht einsehbar. Beheizt wird das Objekt durch eine Gas-Zentral-Heizung. (Brennwert-Therme ; BJ: 2006). Die Fenster sind teilweise isolierverglast. Die Räumlichkeiten sind hell & freundlich und überwiegend mit Echtholzparkett ausgestattet. Hervorzuheben ist der gelungene Grundriss dieser Immobilie und die bevorzugte Wohnlage.

EnEV 2014, Baujahr Gebäude: 1986, Anlagentechnik: 2006, Energieträger: Erdgas, Ausweistyp: Energiededarfsausweis, Energiebedarfskennwert: 164,4 kWh/(m².a), Energieeffizienzklasse: F

Die Maklerprovision beträgt für den Käufer 5,95 % von dem Kaufpreis einschließlich der gesetzlichen Umsatzsteuer.

Grundstück: ca. 689 qm (Gartenanlage, Garage, Terrasse)

Gebäude:
EG: Flur/Diele, Gäste WC, 5 x Schlafzimmer, offener Wohn-/Essbereich, Wohnküche, Abstellraum, HWR, Vollbad

OG: Stauraum

Gesamt: Wohn-/Nutzfläche ca. 165 qm

Lage und Umfeld

26725 Emden OT. Wolthusen (Ruhige, zentrale Wohnlage, Ärzte, Bäcker und Schulen in der Nähe, gute Verkehrsanbindung zur A-31, gute ÖPNV, VW-Werk nur wenige PKW-Minuten entfernt) Die genaue Anschrift erhalten Sie auf telefonische Anfrage.

Lage und Umfeld

Wolthusen

Courtage

5,95 inkl. ges. MwSt. auf den Kaufpreis ist mit Zustandekommen des Kaufvertrages (notarieller Vertragsabschluß) verdient und fällig. Die Vermittelnden und/oder Nachweisenden, BS Immobilien Kontor Büürma GmbH und ggf. deren Beauftragter, erhalten unmittelbaren Zahlungsanspruch gegenüber dem Käufer (Vertrag zugunsten Dritter, § 328 BGB). Alle Angaben sind ohne Gewähr und basieren ausschließlich auf Informationen, die uns von unserem Auftraggeber zur Verfügung gestellt wurden. Wir übernehmen keine Gewähr für die Vollständigkeit, Richtigkeit und Aktualität dieser Angaben. Die Grunderwerbsteuer, Notar- und Grundbuchkosten sind vom Käufer zu tragen. Im übrigen gelten unsere allgemeinen Geschäftsbedingungen. Irrtum und Zwischenverkauf vorbehalten.

Energieinformationen

Energieeffizienz

  • Energieausweis-Art: Bedarf
  • Energieausweis gültig bis: 15.10.2027
  • Endenergiebedarf: 164,40 kWh/(m²*a)
  • Energieeffizienzklasse: F
  • Jahr der energetischen Sanierung: 2006
  • Primärenergieträger: Gas
  • Heizungsart: Zentralheizung
Energieeffizienzklasse
F
Endenergieverbrauchskennwert
164,40 kWh/(m²*a)
  • A+
  • A
  • B
  • C
  • D
  • E
  • 164,40 kWh/(m²*a) | Energieeffizienzklasse F
    F
  • G

Weitere Details

  • Heizungsart: Zentralheizung
  • Courtage: 5,95 inkl. ges. MwSt.
  • Separate WCs: 1
  • Terrassen: 1
  • Zimmer insgesamt: 6
  • Befeuerung: Gas
  • Zustand: gepflegt
  • Immobilie ist verfügbar ab: nach Absprache !
  • Erstellt am: 2018-01-29 11:32:19
  • Verkauft am: 2018-07-17

ICH FREUE MICH AUF IHRE ANFRAGE

Anfrage zu diesem Objekt

Ähnliche Objekte

Schlafzimmer: 4Baujahr: 1890m²: 180

Einfamilienhaus

Dennis Büürma

vor 3 Monaten

179.900€

Schlafzimmer: 4Baujahr: 1890m²: 180

Icon Grundstücksgröße 223 m²
Objektnr.: E19B51620
179.900€
1.499.900€

Schlafzimmer: 4Baujahr: 1860m²: 290

Objektnr.: E19B46403
1.499.900€
920.000€

Schlafzimmer: 16Baujahr: 1880m²: 774

Icon Grundstücksgröße 950 m²
Objektnr.: E19B49700
920.000€

Nicht die passende Immobilie gefunden?

Drucken oder teilen