Bitte geben Sie Ihren Benutzernamen oder Ihre E-Mail-Adresse ein. Sie erhalten einen Link, um ein neues Passwort per E-Mail zu erstellen.
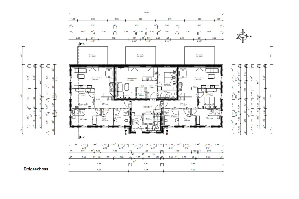
Dieser exklusive Neubau wird Sie begeistern! Die Neubau-Erdgeschoss Wohnung wird schlüsselfertig in einer zentralen Wohnlage von Wolthusen in ansprechender, moderner Architektur erstellt. Auf einem großzügigen Grundstück werden neun barrierefreie, hochwertige Wohnungen für Jung und Alt erstellt. Die Fertigstellung des Gebäudes erfolgt im Jahr 2026. Die ansprechende Architektur und das durchdachte Raumkonzept bieten Wohnkomfort auf höchstem Niveau in zentraler Lage. Sämtliche Geschäfte für den täglichen Bedarf sowie Apotheken, Krankenhaus, Bildungseinrichtungen, Bäcker, Ärzte können Sie bequem zu Fuß erreichen. Die EG-Wohnung überzeugt mit einem gelungenen Raumkonzept, einer Terrasse und einer gehobenen Ausstattung. Lassen Sie sich vom lichtdurchfluteten, offenen Wohn-/Essbereich und der hochwertigen Bauausführung überzeugen. Beheizt wird das Objekt durch eine Luft-Wärmepumpe. Die weißen Kunststofffenster sind Dreifachverglast und mit elektrischen Jalousien ausgestattet.
Aufstellung der Besonderheiten:
-Schlüsselfertige Herstellung 2026
-weiße dreifachverglaste Fenster mit elektrischen Jalousien
-Fußbodenheizung komplett
-Luftwärmepumpe
– Vinylboden
-PKW-Einstellplatz
-In allen Räumen SAT u. Lan-Anschluss
-Weiße, hochwertige Innentüren
-Fahrstuhlanlage
-Gemeinschaftlicher Außenabstellraum
Grundstück: Gem. Eigentum
Gebäude: EG: Flur/Diele, Duschbad mit WC, Abstellraum, Kinderzimmer, Schlafzimmer, offener-/Wohn-/Essbereich mit Küchenanschlüssen und Zugang zur Terrasse
Gesamt: Wohnfläche ca. 80qm

Schlafzimmer: 3Baujahr: 1914m²: 110
Einfamilienhaus
vor 5 Monaten
zum Exposé Schlafzimmer: 2Baujahr: 1958m²: 88
Einfamilienhaus
vor 4 Wochen
Schlafzimmer: 6Baujahr: 1953m²: 230
Einfamilienhaus
vor 5 Monaten