Bitte geben Sie Ihren Benutzernamen oder Ihre E-Mail-Adresse ein. Sie erhalten einen Link, um ein neues Passwort per E-Mail zu erstellen.
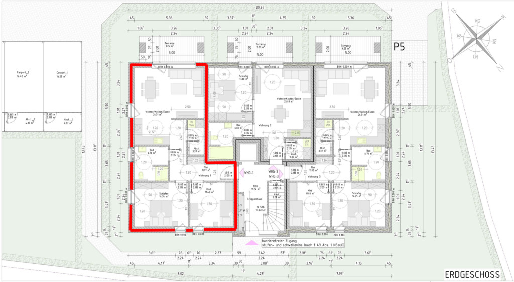
Diese Neubau-Erdgeschoss Wohnung Nr. 1 Haus B wird schlüsselfertig in einer zentralen Lage von Papenburg erstellt. Auf einem großen Gelände Nähe Poggenpoel werden diese beiden hochwertigen Mehrfamilienhäuser mit jeweils sechs Wohnungen in ansprechender Architektur realisiert. Die Wohnungen überzeugen mit einem durchdachten Raumkonzept für Jung und Alt und bieten Wohnkomfort auf höchstem Niveau in bevorzugter Stadtlage im schönen Papenburg. Sämtliche Geschäfte für den täglichen Bedarf (NP-Markt, Bäcker, Ärzte etc.) können Sie bequem mit dem Fahrrad oder zu Fuß erreichen. Die Fertigstellung beider Immobilien ist zu 2023 geplant. Die EG-Wohnung überzeugt mit einer angrenzenden Terrasse und einem Carport oder PKW-Einstellplatz. Lassen Sie sich vom lichtdurchfluteten Wohn-Ess-/ u. Kochbereich überzeugen. Je nach Baufortschritt können ggf. noch Sonderwünsche berücksichtigt werden. Die Ausstattung erstreckt sich über: Dreifachverglaste Fenster, Fußbodenheizung, elektrischen Jalousien, Malerarbeiten, hochwertige Fliesen, etc.. Eine ausführliche Baubeschreibung erhalten Sie auf Anfrage. Beheizt wird das Objekt über eine Wärmepumpe.
Aufstellung der Besonderheiten:
-Schlüsselfertige Herstellung 2023
-Dreifachverglaste Fenster mit elektrischen Jalousien (Farbe Creme)
-Fußbodenheizung komplett
-Inkl. Fliesen/Bodenbeläge und Malerarbeiten (Q2 verspachtelt und gestrichen)
-Hochwertige Terrasse
-Wärmepumpe
-Dezentrale Lüftungsanlage mit Wärmerückgewinnung
-Carport-Stellplätze für die Wohnungen 1, 3, 4, 6, PKW-Einstellplätze für die Wohnungen
2 und 5
-Energieeffiziente Bauweise
-Gira Sprechanlage
– keine KFW Förderung möglich
Grundstück: Gem. Eigentum
Gebäude: EG: Flur/Diele, Kinderzimmer, Schlafzimmer, Duschbad mit WC, offener Wohn-, Ess-, Kochbereich mit Küchenanschlüssen und Zugang zur Terrasse, Abstellraum mit Anschlüssen für Waschmaschine u. Trockner
Gesamt: Wohnfläche ca. 79qm

Schlafzimmer:: 1Baujahr: 2027m²: 62
Etagenwohnung
vor 2 Monaten
Schlafzimmer:: 1Baujahr: 2027m²: 50
Etagenwohnung
vor 2 Monaten
Schlafzimmer: 4Baujahr: 1980m²: 200
Einfamilienhaus
vor 6 Tagen