Bitte geben Sie Ihren Benutzernamen oder Ihre E-Mail-Adresse ein. Sie erhalten einen Link, um ein neues Passwort per E-Mail zu erstellen.
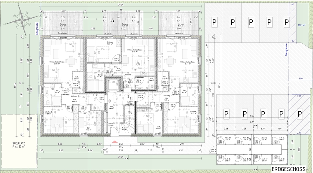
Dieser exklusive Neubau wird Sie begeistern! Die Neubau-Erdgeschoss Wohnung wird schlüsselfertig in einer zentralen Wohnlage von Papenburg in ansprechender, moderner Architektur erstellt. Auf einem großzügigen Grundstück werden acht barrierefreie, hochwertige Wohnungen für Jung und Alt erstellt. Die Fertigstellung des Gebäudes erfolgt im Jahr 2025. Die ansprechende Architektur und das durchdachte Raumkonzept bieten Wohnkomfort auf höchstem Niveau in zentraler Lage. Sämtliche Geschäfte für den täglichen Bedarf sowie Apotheken, Krankenhaus, Bildungseinrichtungen, Bäcker, Ärzte können Sie bequem zu Fuß erreichen. Die EG-Wohnung überzeugt mit einem gelungenen Raumkonzept, einer Terrasse und einer gehobenen Ausstattung. Lassen Sie sich vom lichtdurchfluteten, offenen Wohn-/Essbereich und der hochwertigen Bauausführung überzeugen. Beheizt wird das Objekt durch eine Luft-Wärmepumpe. Die Kunststofffenster sind dreifachverglast und mit elektrischen Jalousien ausgestattet.
Aufstellung der Besonderheiten:
-Schlüsselfertige Herstellung 2025
-Dreifachverglaste Fenster mit elektrischen Jalousien
-Fußbodenheizung komplett
-Feinsteinfliesen, Parkettböden, Vinyl-Designbelag
-PKW-Einstellplatz
-In allem Räumen SAT u. Lan-Anschluss
-Weiße, hochwertige Innentüren
-Fahrstuhlanlage
Grundstück: Gem. Eigentum
Gebäude: EG: Flur/Diele, Duschbad mit WC, Schlafzimmer, offener Wohn-/Essbereich mit Küchenanschlüssen und Zugang zur Terrasse, Abstellraum mit Anschluss für WA/TR,
Gesamt: Wohnfläche ca. 53qm

Schlafzimmer:: 1Baujahr: 2025m²: 49
Etagenwohnung
vor 5 Monaten
Schlafzimmer: 2Baujahr: 1981m²: 117
Bungalow
vor 2 Tagen
Schlafzimmer:: 1Baujahr: 2027m²: 50
Etagenwohnung
vor 1 Monat