Bitte geben Sie Ihren Benutzernamen oder Ihre E-Mail-Adresse ein. Sie erhalten einen Link, um ein neues Passwort per E-Mail zu erstellen.
Dieses teilrenovierte Einfamilienhaus wurde 1974 in konventioneller Massivbauweise mit einem Satteldach in ruhiger, zentraler Wohnlage von Leer erstellt. Der Ortsteil Loga überzeugt mit einer ausgewogenen Infrastruktur, Schulen, Ärzten und einer guten Verkehrsanbindung. Mit einer Wohnfläche von über 130qm bietet Ihnen diese Immobilie ausreichend Platz und Entfaltungsmöglichkeiten für dir ganze Familie. Das pflegeleichte Eigentumsgrundstück bemisst ca. 460qm und ist komplett durch eine Hecke eingefriedet. Die weißen Kunststofffenster sind Isolierverglast und mit Jalousien ausgestattet. Beheizt wird die Immobilie mit einer Gas-Z.-Heizung (BJ: 2015). Gerne überzeugen wir Sie in einer persönlichen Besichtigung von dieser Immobilie.
Besondere Ausstattungsmerkmale:
-Ca. 2015 Gas-Z.-Heizung erneuert
-Ca. 2020 Bad EG erneuert
-Zentrale Lage im bevorzugten Loga
-Nähe zum Julianenpark
-Wintergarten
Grundstüca. 460qm (Garage, Gartenanlage, Terrasse)
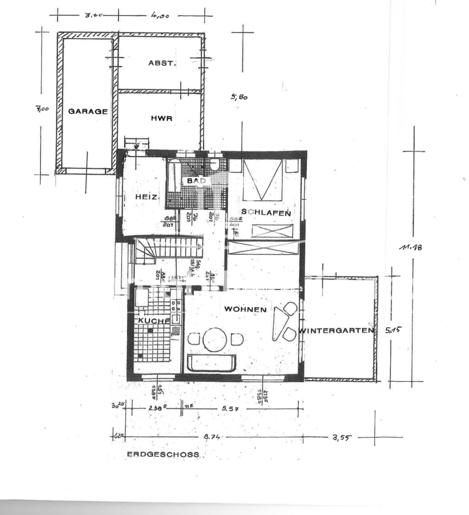
EG: Flur/Diele, Küche, gr. Wohnzimmer, Wintergarten, Schlafzimmer, Bad mit WC, Heizungsraum, Waschküche, Garage
OG:Flur/Diele, 2x Schlafzimmer, Bad
Gesamt: Wohn-/Nutzfläche ca. 130qm

Schlafzimmer: 3Baujahr: 2014m²: 171
Einfamilienhaus
vor 7 Monaten
Schlafzimmer: 3Baujahr: 1938m²: 128
Einfamilienhaus
vor 3 Wochen
Schlafzimmer: 2Baujahr: 1994m²: 80
DG-Wohnung
vor 3 Monaten