Vergleiche Einträge

KFW 55! Schlüsselfertige Neubau-Bungalowdoppelhaushälfte Nr. 02 mit Terrasse, Carport und Gartenanlage in ruhiger Wohnlage!

26723 Emden, Wybelsum
Kaufpreis 255.000€
  • Icon
    Immobilien-Nr.
    E19933410
  • Icon
    Grundstück
    330 m²
  • Icon
    Wohnfläche
    90 m²
  • Icon
    Baujahr
    2021
  • Icon
    Schlafzimmer
    2
  • Icon
    Badezimmer
    1

Jetzt Exposé anfordern

Beschreibung

Nur noch eine Bungalowhaushälfte frei. Diese Neubau-Bungalowdoppelhaushälfte wird 2021 von einem renommierten, ortsansässigen Bauunternehmer schlüsselfertig errichtet und liegt in einer ruhigen, bevorzugten Wohnlage von Wybelsum. Das pflegeleichte Grundstück bemisst ca. 330 qm und verfügt über eine geräumige Terrasse. Die Ausstattung dieser Neubau-Bungalowdoppelhaushälfte erstreckt sich über: Dreifachverglaste Fenster, Fußbodenheizung, elektrischen Jalousien, Raufaser tapeziert, hochwertige Fliesen etc.. Eine ausführliche Baubeschreibung erhalten Sie auf Anfrage. Aufgrund der barrierefreien Anordnung der Räumlichkeiten eignet sich dieser Bungalow besonders als Altersruhesitz. Beheizt wird das Objekt durch eine Gas-Zentral-Heizung (Solarunterstützt). Die Kunststofffenster sind dreifachverglast und mit elektrischen Jalousien ausgestattet. Ein Objekt für Menschen die das „ebenerdiges Wohnen“ bevorzugen. Die Immobilie wird nach den Richtlinien eines KFW55 Hauses erstellt.

Aufstellung der Besonderheiten:

-Schlüsselfertige Herstellung 2021
-Inkl. Carport mit Abstellraum zur Größe von ca. 21,10qm
-Dreifachverglaste Fenster mit elektrischen Jalousien
-Fußbodenheizung komplett
-Hochwertige Fliesen
-Malerarbeiten (Raufaser)
-Terrasse und Einfahrt gepflastert
– KFW 55

Grundstüca. 330 qm (Gepflastert Auffahrt und Terrasse, Carport)

Gebäude:
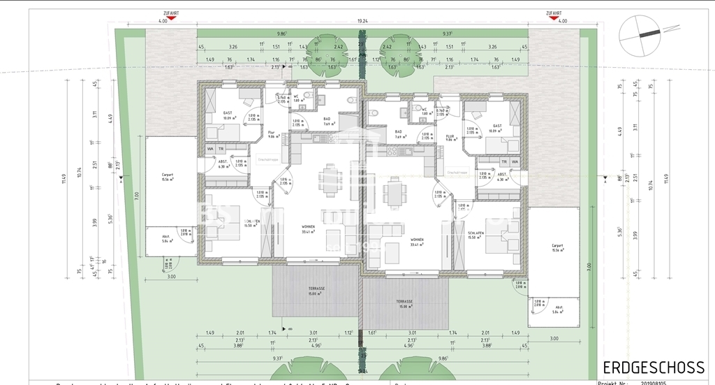
EG: Flur/Diele, Gäste WC, Duschbad mit WC, Gästezimmer, HWR, offener Wohn-/Essbereich mit Küchenanschlüssen, Schlafzimmer

DG: Stauraum

Gesamt: Wohnfläche ca. 87 qm
Nutzfläche Carport inkl. Abstellraum ca. 21,10 qm

Lage und Umfeld

26723 OT. Wybelsum (Ruhige, zentrale Wohnlage, DOC-Einkaufscenter nur wenige PKW-Min. entfernt, Stadtkern Emden nur wenige PKW-Min. entfernt, gute ÖPNV, gute Verkehrsanbindung zur A-31)

Lage und Umfeld

Wybelsum

Courtage

2,975 % vom Kaufpreis inkl. ges. MwSt. auf den Kaufpreis ist mit Zustandekommen des Kaufvertrages (notarieller Vertragsabschluß) verdient und fällig. Die Vermittelnden und/oder Nachweisenden, BS Immobilien Kontor Büürma GmbH und ggf. deren Beauftragter, erhalten unmittelbaren Zahlungsanspruch gegenüber dem Käufer (Vertrag zugunsten Dritter, § 328 BGB). Alle Angaben sind ohne Gewähr und basieren ausschließlich auf Informationen, die uns von unserem Auftraggeber zur Verfügung gestellt wurden. Wir übernehmen keine Gewähr für die Vollständigkeit, Richtigkeit und Aktualität dieser Angaben. Die Grunderwerbsteuer, Notar- und Grundbuchkosten sind vom Käufer zu tragen. Im übrigen gelten unsere allgemeinen Geschäftsbedingungen. Irrtum und Zwischenverkauf vorbehalten.

Energieinformationen

Energieeffizienz

  • Energieausweis-Art: Bedarf
  • Energieausweis gültig bis: 06.05.2030
  • Endenergiebedarf: 69,40 kWh/(m²*a)
  • Energieeffizienzklasse: B
  • Jahr der energetischen Sanierung: 2021
  • Primärenergieträger: Gas
  • Heizungsart: Zentralheizung
Energieeffizienzklasse
B
Endenergieverbrauchskennwert
69,40 kWh/(m²*a)
  • A+
  • A
  • 69,40 kWh/(m²*a) | Energieeffizienzklasse B
    B
  • C
  • D
  • E
  • F
  • G

Weitere Details

  • Heizungsart: Zentralheizung
  • Courtage: 2,975 % vom Kaufpreis inkl. ges. MwSt.
  • Nutzfläche: 21 m²
  • Separate WCs: 1
  • Terrassen: 1
  • Zimmer insgesamt: 3
  • Befeuerung: Gas
  • Zustand: Erstbezug
  • Immobilie ist verfügbar ab: nach Fertigstellung
  • Erstellt am: 2021-01-29 16:00:03
  • Verkauft am: 2021-01-29

Grundrisse

  • m_EG_22
img

ICH FREUE MICH AUF IHRE ANFRAGE

Anfrage zu diesem Objekt

Ähnliche Objekte

Schlafzimmer: 3Baujahr: 1900m²: 120

Doppelhaushälfte

Dennis Büürma

vor 4 Monaten

270.000€

Schlafzimmer: 3Baujahr: 1900m²: 120

Icon Grundstücksgröße 200 m²
Objektnr.: E19B46101
270.000€
270.000€

Schlafzimmer: 3Baujahr: 1896m²: 188

Icon Grundstücksgröße 700 m²
Objektnr.: E19B58510
270.000€
115.000€

Schlafzimmer: 4Baujahr: 1950m²: 120

Icon Grundstücksgröße 374 m²
Objektnr.: E19B45110
115.000€

Nicht die passende Immobilie gefunden?

Drucken oder teilen