Bitte geben Sie Ihren Benutzernamen oder Ihre E-Mail-Adresse ein. Sie erhalten einen Link, um ein neues Passwort per E-Mail zu erstellen.
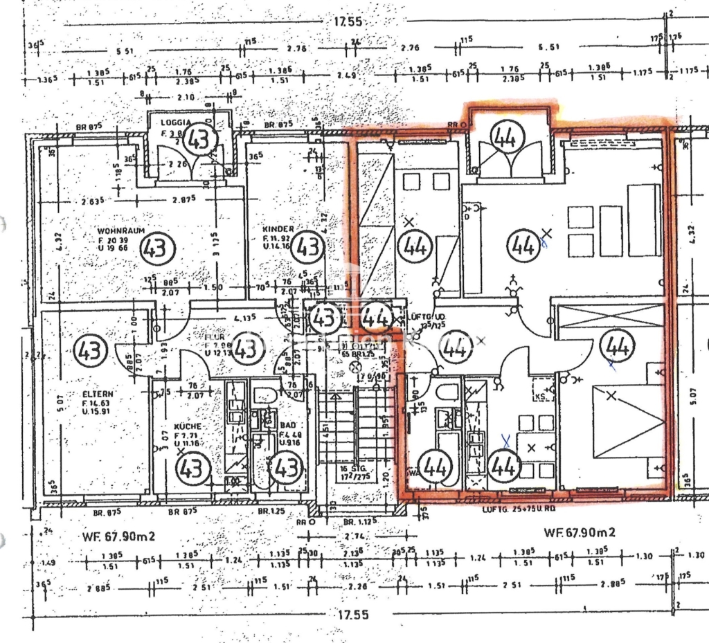
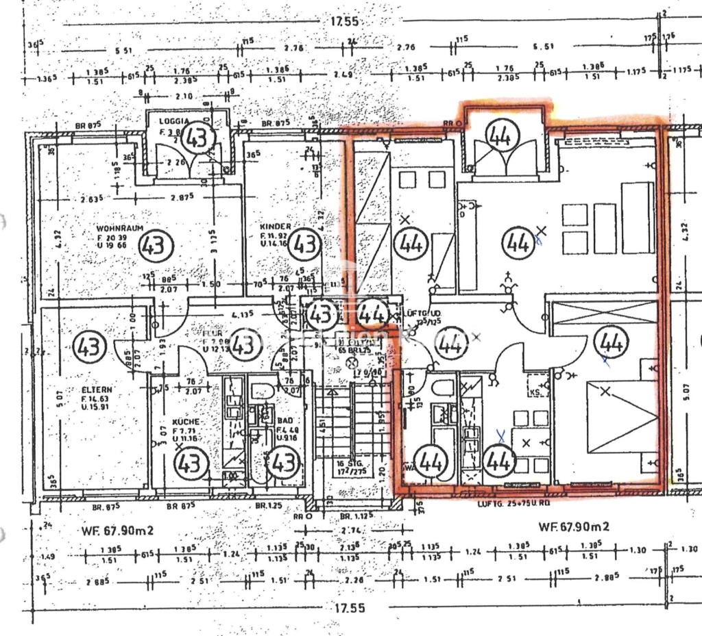
Diese renovierte, gepflegte Eigentumswohnung liegt im Ortsteil Barenburg und wurde ca. 1967 in Massivbauweise erstellt. Zur Wohnung gehören ein Balkon und ein Kellerraum. Im vorderen Bereich gibt es eine öffentlich ausgewiesene Parkplatzanlage. Die weißen Kunststofffenster sind mit einer Isolierverglasung ausgestattet. Beheizt wird die Wohnanlage durch eine Gas-Z.-Heizung. Eine aktuelle Wohngeld-Abrechnung erhalten Sie auf Anfrage. Die Eigentumswohnung ist derzeit für 360,00 € Kalt vermietet, das monatliche Hausgeld beträgt derzeit 272,00 €.
GrundstüGem. Eigentum, PKW- Stellplatz
Gebäude: 2. OG: Flur/Diele, Wohnzimmer, Küche, Schlafzimmer, Kinderzimmer, Bad, Abstellraum, Balkon
Gesamt: Wohnfläche ca. 67,9 qm

zum Exposé Schlafzimmer: 2Baujahr: 2026m²: 90
Einfamilienhaus
vor 3 Monaten
Schlafzimmer: 4Baujahr: 1945m²: 130
Einfamilienhaus
vor 4 Wochen
zum Exposé Baujahr: 2000
Einzelhandelsladen
vor 2 Wochen