Bitte geben Sie Ihren Benutzernamen oder Ihre E-Mail-Adresse ein. Sie erhalten einen Link, um ein neues Passwort per E-Mail zu erstellen.
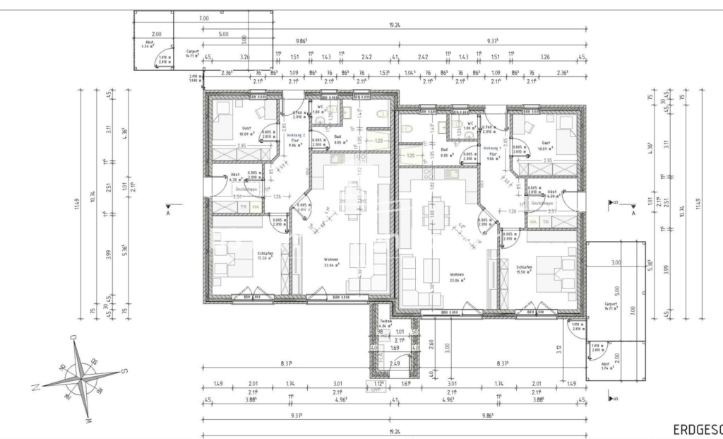
Lassen Sie sich von diesem Wohntraum überzeugen. Diese Neubau Bungalow wird Ende 2026/27 von einem renommierten Bauunternehmen aus der Region auf einem zentral gelegenen Grundstück in Conrebbersweg schlüsselfertig errichtet. Die äußerst ansprechende Raumaufteilung sowie die bodentiefen Fenster, lassen die ca. 87qm große Wohnfläche lichtdurchflutet und weitläufig erscheinen. Das pflegeleicht angelegte Grundstück bemisst ca. 300qm. Jede Bungalowhaushälfte verfügt über einen eigenen Carport und eine nach Westen ausgerichtete Terrasse. Die Küche ist als offene Wohnküche geplant und lädt zum gemeinschaftlichen Kochen und Verweilen ein. Der über die Bodentreppe erreichbare Dachboden ist ebenfalls sehr großflächig und bietet Ihnen ausreichend Abstellmöglichkeiten. Die Immobilie wird nach den aktuellen, energetischen Richtlinien erstellt. Standardmäßig verfügt der Bungalow über folgende Ausstattung: Elektrische Jalousien, Dreifachverglaste Fenster, Fußbodenheizung, Raufaser tapeziert, hochwertige Fliesen etc. Eine ausführliche Baubeschreibung erhalten Sie gerne auf Nachfrage. Sonderwünsche können gern gegen Aufpreis und sofern dies aufgrund des Baufortschrittes noch möglich ist, umgesetzt werden. Aufgrund der barrierefreien Anordnung der Räumlichkeiten eignet sich dieser Bungalow ideal als Altersruhesitz. Beheizt wird das Objekt durch eine Luft-Wärme-Pumpe. Die installierte PV-Anlage wird mit 8.500,00€ zusätzlich berechnet. Ein Objekt für Menschen die das „ebenerdige Wohnen“ bevorzugen. Zögern Sie nicht uns zu kontaktieren und vereinbaren Sie gerne einen Besichtigungstermin für das baugleiche Musterhaus.
Aufstellung der Besonderheiten:
-Schlüsselfertige Herstellung 2026/27
-Dreifachverglaste Fenster mit elektrischen Jalousien
-Fußbodenheizung komplett
-Hochwertige Fliesen
-Malerarbeiten (Raufaser)
-Terrasse und Einfahrt gepflastert
-Luft/ Wasser Wärmepumpe – keine Gaskosten
-Carport-Einstellplatz
– PV-Anlage, Aufpreis ca. 8.500,00€
Grundstück: ca. 300qm (Gepflasterte Auffahrt und Terrasse, PKW-Einstellplatz)
EG: Flur/Diele, Gäste WC, Duschbad mit WC, Gästezimmer, HWR, offener Wohn-/Essbereich mit Küchenanschlüssen und Zugang zur Terrasse, Abstellraum, Schlafzimmer
DG: Stauraum
Gesamt: Wohnfläche ca. 87qm

zum Exposé Baujahr: 1958m²: 1040
Mehrfamilienhaus
vor 9 Monaten
Schlafzimmer: 6Baujahr: 1960m²: 180
Mehrfamilienhaus
vor 4 Monaten
Baujahr: 1955m²: 49
DG-Wohnung
vor 1 Woche