Bitte geben Sie Ihren Benutzernamen oder Ihre E-Mail-Adresse ein. Sie erhalten einen Link, um ein neues Passwort per E-Mail zu erstellen.
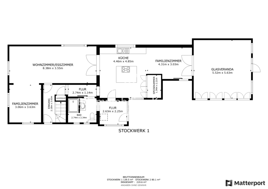
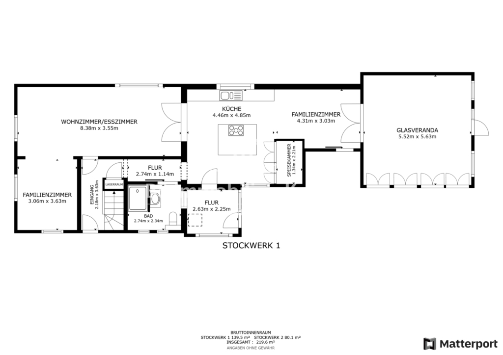
Dieses gemütliche Einfamilienhaus liegt im Stadtkern von Papenburg und wurde ca. 1957 in konventioneller Massivbauweise mit einem Satteldach erstellt. Das Eigentumsgrundstück bemisst ca. 1.400qm und wurde liebevoll parkähnlich angelegt. Ein kleines Idyll umringt von viel Grün, in dem Ihrer Kreativität keine Grenzen gesetzt sind. Der Wintergarten lässt sich durch den Essbereich betreten und befindet sich auf der Rückseite des Hauses. Beheizt wird das Objekt durch eine Gas-Zentral-Heizung (Bj. 2014), Fußbodenerwärmung in Bad und Essbereich. Zwischen 2014 und 2023 fanden kontinuierlich umfangreiche Renovierungsmaßnahmen statt (siehe Aufstellung). Die weißen Kunststofffenster sind mit einer Isolierverglasung und Jalousien ausgestattet. Die zahlreichen Fenster lassen die Räumlichkeiten hell und freundlich wirken und ermöglichen einen schönen Blick in den Garten.
Besonderheiten/Ausstattungsmerkmale:
-Elektrik erneuert
-Wasserleitungen erneuert
-Bodenbeläge erneuert
– Badezimmer erneuert
-Fenster teilweise erneuert
-Dämmung installiert
-moderne, offene Küche
– Kaminofen
-Wintergarten
-Zentrale Lage
Grundstüca. 1.400qm (Terrasse, Garage, Gartenanlage, Nebengebäude)
Gebäude: EG: Flur/Diele, offener Wohn-/Essbereich, Küche mit Essbereich, Wintergarten, HWR, Duschbad
OG: Flur/Diele, Elternschlafzimmer, Ankleide (Durchgangszimmer), Schlafzimmer, Bad en Suite
KG: 2x kl. Kellerraum
Gesamt: Wohn-/Nutzfläche ca. 165 qm

Schlafzimmer: 6Baujahr: 1980m²: 337
Einfamilienhaus
vor 2 Monaten
Schlafzimmer:: 1Baujahr: 2025m²: 63
Erdgeschosswohnung
vor 2 Wochen
Schlafzimmer: 2Baujahr: 2024m²: 91
Penthouse-Wohnung
vor 2 Wochen