Bitte geben Sie Ihren Benutzernamen oder Ihre E-Mail-Adresse ein. Sie erhalten einen Link, um ein neues Passwort per E-Mail zu erstellen.
Energieausweis in Vorbereitung!
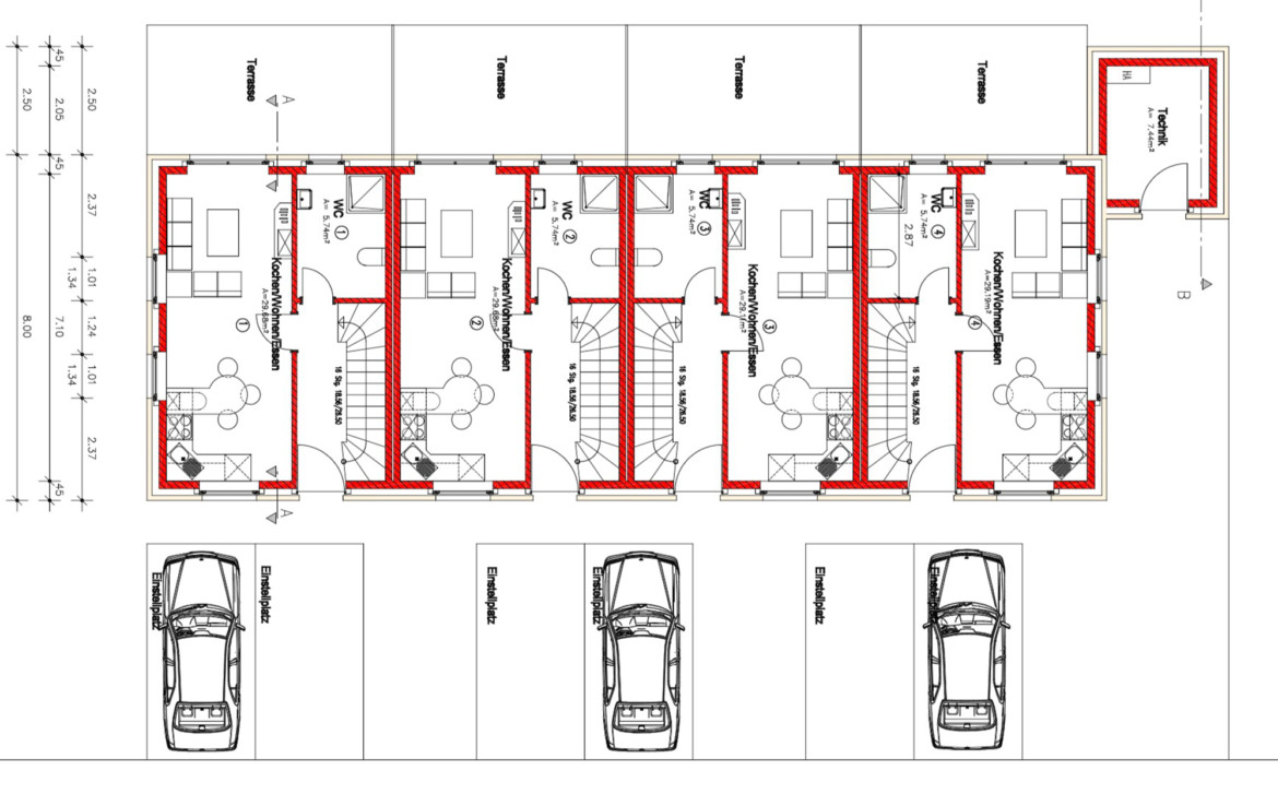
In einer zentralen Wohnlage von Westoverledingen OT Völlenerfehn wird dieses Neubau- Reihenmittelhaus errichtet. Fördermittel bis zu 18.000€ möglich. Das Erdgeschoss erstreckt sich aus dem Flur/Diele, offener Wohn-/Koch-/Essbereich mit Zugang zur Terrasse sowie dem Bad. Im Obergeschoss der Wohnung befinden sich Flur, 2x Schlafzimmer und ein Abstellraum. Einige Ausstattungsdetails dieses Gebäudes sind unteranderem: 3 Fach-Vergl. Kunststofffenster, glasierte, schwarze Tondachziegel, roter Klinker sowie eine Fußbodenheizung. Beheizt wird das Reihenmittelhaus durch Erdwärme. Die Fertigstellung ist voraussichtlich im Januar 2021. Eine Immobilie für Menschen, die auf eine neuwertige Immobilie sowie auf die Nähe zu Papenburg nicht verzichten möchten.
Wohn-/Nutzfläche: ca. 58qm
Die Maklerprovision beträgt für den Käufer 5,95 % von dem Kaufpreis einschließlich der gesetzlichen Umsatzsteuer.
Objekt:
!!Gelegenheit!! KFW 55! Nr.2 – Neubau-Reihenmittelhaus in zentraler Wohnlage von Völlenerfehn
Baujahr:
2020/2021
Grundstück:
ca. 1qm (wird noch vermessen)
Gebäude:
Wohnung Nr.2:
EG: Flur/Diele, offener Wohn-/Koch-/Essbereich mit Zugang zur Terrasse, Bad
OG: Flur, 2x Schlafzimmer, Abstellraum
Wohn-/Nutzfläche: ca. 58qm

Schlafzimmer: 2Baujahr: 2013m²: 89
Doppelhaushälfte
vor 2 Wochen
Schlafzimmer: 4Baujahr: 2016m²: 652
Einfamilienhaus
vor 10 Monaten