Vergleiche Einträge

Freepsum ! Renovierungsbedürftiges Einfamilienhaus mit 2 Wohneinheiten und Nebengebäude (Stall

26736 Krummhörn, Freepsum
Kaufpreis 110.000€
  • Icon
    Immobilien-Nr.
    E34900
  • Icon
    Grundstück
    1451 m²
  • Icon
    Wohnfläche
    180 m²
  • Icon
    Baujahr
    1970
  • Icon
    Schlafzimmer
    5
  • Icon
    Badezimmer
    3

Jetzt Exposé anfordern

Beschreibung

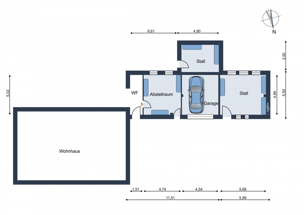
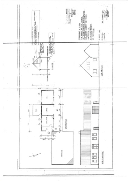
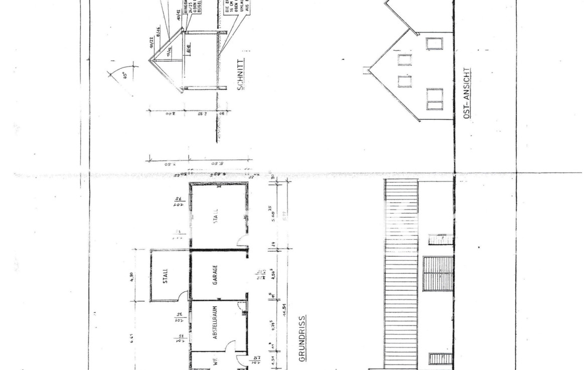
Dieses renovierungsbedürftige Einfamilienhaus bestehend aus 2 Wohneinheiten wurde ca. 1970 in Massivbauweise mit einem Satteldach erstellt und ist derzeit vermietet. Die Wohneinheit Nr. 1 im Erdgeschoss erzielt ca. 4.800,00 EUR jährliche Nettokaltmiete. Die Wohneinheit Nr. 2 kann mietfrei übernommen werden. Das Objekt liegt in einer zentralen Wohnlage von Freepsum und überzeugt durch eine praktische Raumaufteilung. Das Stallgebäude (BJ ca. 1995 ; Abmessungen ca. 17,5 m x 3,5m) bietet Unterstellmöglichkeiten für Ihre Pferde oder Kleintiere. Der nächst gelegene Ort Pewsum ist ca. 2 – 3 PKW. Min. entfernt und verfügt über zahlreiche Einkaufsmöglichkeiten, Bäcker, Ärzte etc.. Das Grundstück bemisst ca. 1.451 qm. Beheizt wird das Objekt durch eine Gas-Zentral-Heizung (BJ: ca. 1998).

Anbieter-Objektnummer: E34900

Wohneinheit 1:
EG: Küche, Wohn-/Essbereich, Duschbad mit WC, Schlafzimmer

Wohneinheit 2:
EG: Flur/Diele, Küche, Schlafzimmer, Wohnzimmer, Duschbad mit WC OG: Flur/Diele, 3 x Zimmer, Bad

Gesamt: Wohn-/Nutzfläche ca. 180 qm zzgl. Nebengebäude ca. 96 qm

Lage und Umfeld

26736 Krummhörn OT. Freepsum (Zentrale Wohnlage, gute ÖPNV, Nähe zum Ort Pewsum, Einkaufsmöglichkeiten ca. 2-3 PKW- Min. entfernt, gute Verkehrsanbindung zur A-31, Stadt Emden ca. 12 PKW-Min., Greetsiel ca. 17 PKW-Min. entfernt) Die genaue Anschrift erhalten Sie auf telefonische Anfrage.

Lage und Umfeld

Freepsum

Courtage

5,95 % inkl. MwSt auf den Kaufpreis ist mit Zustandekommen des Kaufvertrages (notarieller Vertragsabschluß) verdient und fällig. Die Vermittelnden und/oder Nachweisenden, BS Immobilien Kontor Büürma GmbH und ggf. deren Beauftragter, erhalten unmittelbaren Zahlungsanspruch gegenüber dem Käufer (Vertrag zugunsten Dritter, § 328 BGB). Alle Angaben sind ohne Gewähr und basieren ausschließlich auf Informationen, die uns von unserem Auftraggeber zur Verfügung gestellt wurden. Wir übernehmen keine Gewähr für die Vollständigkeit, Richtigkeit und Aktualität dieser Angaben. Die Grunderwerbsteuer, Notar- und Grundbuchkosten sind vom Käufer zu tragen. Im übrigen gelten unsere allgemeinen Geschäftsbedingungen. Irrtum und Zwischenverkauf vorbehalten.

Energieinformationen

Energieeffizienz

  • Energieausweis-Art: Bedarf
  • Energieausweis gültig bis: 20.10.2025
  • Endenergiebedarf: 248,30 kWh/(m²*a)
  • Energieeffizienzklasse: G
  • Jahr der energetischen Sanierung: 1970
  • Primärenergieträger: Gas
  • Heizungsart: Zentralheizung
Energieeffizienzklasse
G
Endenergieverbrauchskennwert
248,30 kWh/(m²*a)
  • A+
  • A
  • B
  • C
  • D
  • E
  • F
  • 248,30 kWh/(m²*a) | Energieeffizienzklasse G
    G

Weitere Details

  • Heizungsart: Zentralheizung
  • Anzahl Etagen: 2,0
  • Courtage: 5,95 % inkl. MwSt
  • Nutzfläche: 96 m²
  • Zimmer insgesamt: 7
  • Befeuerung: Gas
  • Zustand: renovierungsbedürftig
  • Erstellt am: 2017-04-06 12:10:28
  • Verkauft am: 2018-10-12

Grundrisse

  • E34900
img

ICH FREUE MICH AUF IHRE ANFRAGE

Anfrage zu diesem Objekt

Ähnliche Objekte

Schlafzimmer: 3Baujahr: 1960m²: 150

Einfamilienhaus

Dennis Büürma

vor 4 Tagen

299.000€

Schlafzimmer: 3Baujahr: 1960m²: 150

Icon Grundstücksgröße 623 m²
Objektnr.: E19B48800
299.000€
399.000€

Schlafzimmer: 6Baujahr: 1801m²: 270

Icon Grundstücksgröße 400 m²
Objektnr.: E19B51500
399.000€
365.000€

Schlafzimmer: 4Baujahr: 1985m²: 200

Icon Grundstücksgröße 788 m²
Objektnr.: E19B29400
365.000€

Nicht die passende Immobilie gefunden?

Drucken oder teilen