Bitte geben Sie Ihren Benutzernamen oder Ihre E-Mail-Adresse ein. Sie erhalten einen Link, um ein neues Passwort per E-Mail zu erstellen.
Dieser gepflegte Winkelbungalow wurde 1980 mit einem Walmdach und mit direkten Zugang zur Garage/Werkstatt in Massivbauweise erstellt. Die vorhandenen braunen Hartholzfenster (Afzelia) verfügen über Iso.-Vergls. und sind im ebenerdigen Bereich mit Außenrollladen versehen. Das Wohnzimmer und das Elternschlafzimmer verfügen über bodentiefe Fenster mit Tür zur nicht einsehbaren Süd-West Terrasse. Beheizt wird die Immobilie durch eine Gas-Z-Brennwertanlage (Einbau 2013) mit Wandheizkörper. Alle Versorgungsanlagen befinden sind in einem gewarteten und einwandfreien Zustand. Im Laufe der Jahre wurden immer wieder Modernisierungs- und Renovierungs-arbeiten durchgeführt, sowie 2 weitere Zimmer im Dachgeschoss zu Wohnzwecken ausgebaut. 2018 wurde das Dach der Garage komplett neu mit Teerpappe versehen und abgeklebt. Im Jahr 2022 folgte dann die Neueindeckung des Daches vom Blockhaus.
Hervorzuheben ist der wohnliche Grundcharakter des Objektes mit gut durchdachter und barrierefreier Raumaufteilung. Ein Highlight ist der traumhafte rückwärtige Garten (nicht einsehbar und gesamt eingezäunt) mit vielen Stauden, Rhododendron und einem besonderen Flair. Eine wirklich schöne Immobilie für Menschen die in Ruhe leben möchten, ohne auf solide Infrastruktur in unmittelbarer Nähe zu verzichten.
BJ Gebäude: 1980, BJ Anlagentechnik: 2013, Energieträger: Erdgas, Ausweistyp: Bedarfsausweis, Energieverbrauch: 142,9 kWh/(m²a), Energieeffizienzklasse: E
Die Maklerprovision beträgt für den Käufer 3,57% vom Kaufpreis inkl. ges. MwSt..
Aufgrund der begrenzten Speicherkapazität der einzelnen Portale erhalten Sie weitere Informationen wie Fotos, Exposé, Lageplan, Zeichnungen zu diesem Objekt auf unserer Website unter: www.bs-immobilienkontor.de oder unter Tel: 04952-952940 sowie Handy: 0172-7611646 (Büro Rhauderfehn, Herr A. Spellbring)
Gepflegter Winkelbungalow mit Garage/Werkstatt, Blockhaus und zweiter Auffahrt, EBK sowie nicht einsehbares Grundstück mit Terrasse in ruhiger zentrale Wohnlage im Ortskernbereich
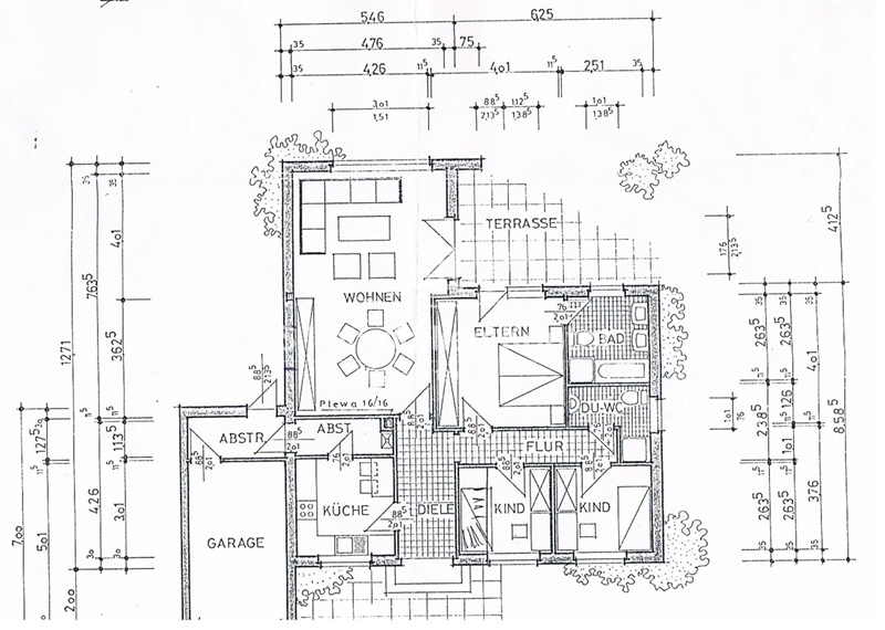
Grundstück:
1040 qm (nicht einsehbares u. komplett für Hunde eingefriedetes Grundstück mit angelegten Rhododendron-Hecken, Rasenflächen, Terrassenplatz u.v.m.)
Baujahr:
1980 ( Sehr guter Allgemeinzustand, ständig gewartet und liebevoll gepflegt)
Aufteilung:
EG:
Diele (ca.5,29 m²), Wohnzimmer mit Zugang zur Terrasse (ca.34,50 m²),
Küche inc. EBK (ca.9,06 m²), Gäste/Duschbad/WC (ca.4,30 m²), Abstellraum (ca.1,14 m²), Gästezimmer (ca.7,91 m²), Büro (ca.7,57 m²), E-Schlafzimmer mit Zugang zur Terrasse (ca.16,08 m²), Vollbad (ca.6,60 m²), Terrasse (ca.25,75 m²), Garage (ca.15,08 m²)
OG:
Gästezimmer (ca.10,18 m²), Büro (ca.11,16 m²) sowie weitere Dachboden als zusätzlicher Stauraum.
ges. ca. 120 m² Wohnfläche zzgl. 15,08 m² Nutzfläche + Dachboden & Blockhaus

Schlafzimmer: 2Baujahr: 2023m²: 77
DG-Wohnung
vor 2 Monaten
zum Exposé Schlafzimmer: 2Baujahr: 2025m²: 87
Einfamilienhaus
vor 1 Monat
Schlafzimmer: 2Baujahr: 2022m²: 72
Erdgeschosswohnung
vor 10 Monaten