Bitte geben Sie Ihren Benutzernamen oder Ihre E-Mail-Adresse ein. Sie erhalten einen Link, um ein neues Passwort per E-Mail zu erstellen.
Diese attraktive Obergeschosswohnung befindet sich in der zweiten Etage eines architektonisch ansprechend gestalteten Mehrparteienhauses. Die Eigentumswohnung überzeugt durch ihren äußerst gepflegten Zustand sowie einen durchdachten und gelungenen Grundriss. Ein besonderes Highlight ist die windgeschützte Loggia, auf der Sie entspannte Sommerabende in angenehmer Atmosphäre genießen können. Die zentrale Wohnlage in Schortens bietet Ihnen eine hervorragende Infrastruktur: Sämtliche Einkaufsmöglichkeiten für den täglichen Bedarf sowie weitere Einrichtungen des öffentlichen Lebens befinden sich in unmittelbarer Nähe. Selbstverständlich ist das Treppenhaus mit einem Fahrstuhl ausgestattet, sodass die Wohnung bequem und barrierearm erreichbar ist. Die Wohnung begeistert durch ein lichtdurchflutetes Wohnambiente und eine hochwertige Ausstattung. Die Kunststofffenster verfügen über eine Isolierverglasung sowie elektrische Jalousien. Beheizt wird das Gebäude über eine moderne Luft-Wärmepumpe in Verbindung mit einer Photovoltaikanlage zur nachhaltigen Energiegewinnung (Ablesung über Wärmemengenzähler). Alle Räume sind mit einer angenehmen Fußbodenheizung ausgestattet. Mit einer Wohnfläche von über 79 m² bietet diese Immobilie maximalen Wohnkomfort auf hohem Niveau. Ein PKW-Einstellplatz sowie ein Kellerraum runden dieses attraktive Angebot ab. Die Eigentumswohnung ist derzeit vermietet und erzielt eine monatliche Kaltmiete von 880,00 € zzgl. 240,00 € Nebenkosten.
Gerne überzeugen wir Sie im Rahmen eines persönlichen Besichtigungstermins von den Vorzügen dieser Immobilie.
Besondere Ausstattungsmerkmale:
-derzeit für 880,00€ Kaltmiete und 240,00€ Nebenkosten mtl. vermietet
-3-fach Verglasung
-Elektrische Jalousien
-Fußbodenheizung
-Kontrollierte Wohnraumlüftung
-Energetische Luft-Wärmepumpe
-Photovoltaikanlage
-Fahrstuhl
-PKW-Stellplatz
GrundstüGem. Eigentum (PKW-Einstellplatz)
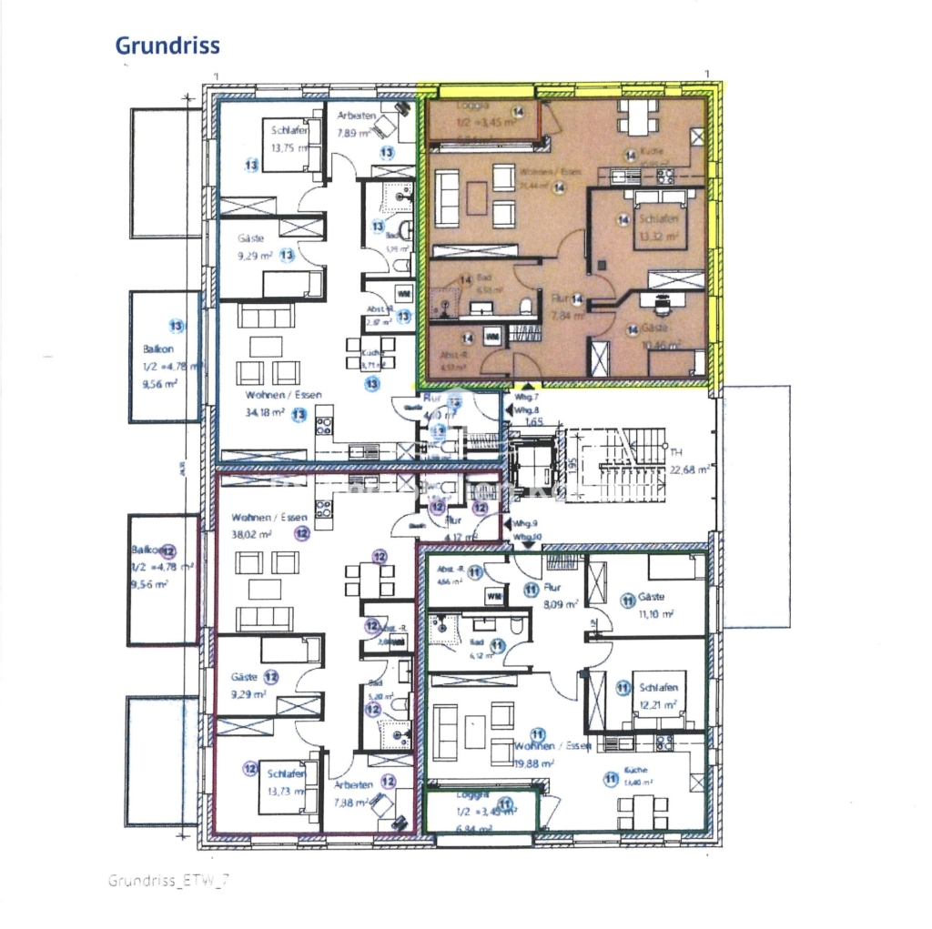
Gebäude: 2.OG:Flur/Diele, HWR, Dusch-Bad, Gästezimmer, gr. offener Wohn-/Ess-/Kochbereich mit Zugang zur Loggia, Schlafzimmer
Gesamt: Wohn-/Nutzfläche ca. 79qm, zzgl. Nutzfl. 1x Kellerraum
