Vergleiche Einträge

Wiesmoor! Familienfreundliches Einfamilienhaus mit Carport, Gartenanlage und Terrasse in ruhiger Wohnlage!

26639 Wiesmoor, Wiesmoor
Kaufpreis 320.000€
  • Icon
    Immobilien-Nr.
    E19B19700
  • Icon
    Grundstück
    871 m²
  • Icon
    Wohnfläche
    134 m²
  • Icon
    Baujahr
    1997
  • Icon
    Schlafzimmer
    4
  • Icon
    Badezimmer
    1

Jetzt Exposé anfordern

Beschreibung

Dieses familienfreundliche Einfamilienhaus wurde 1997 in massiver Bauweise mit einem Satteldach in ruhiger Wohnlage in Wiesmoor erstellt. In der Nähe befinden sich zahlreiche Einkaufsmöglichkeiten für den täglichen Bedarf, Bäcker und Ärzte. Das Eigentumsgrundstück bemisst 871qm, der Garten verfügt über eine Einzäunung bzw. Heckenbepflanzung. Diese Immobilie besticht durch einen gelungenen Grundriss mit einer praktischen Raumaufteilung und einer Terrasse mit Süd-Ausrichtung. Mit einer Wohnfläche von ca. 134qm eignet sich dieses Objekt ideal für die ganze Familie. Im Laufe der letzten Jahre erfolgten diverse Renovierungsmaßnahmen (vgl. Aufstellung). Die Kunststofffenster sind isolierverglast und mit Jalousien ausgestattet, im EG mit elektrischem Antrieb. Beheizt wird die Immobilie durch eine Gas-Z.-Heizung (BJ 2021). Im Wohnzimmer befindet sich zusätzlich ein Kaminofen, der zusätzlich für Behaglichkeit sorgt. Energetisch wird diese durch eine Photovoltaik-Anlage vervollständigt. Gerne überzeugen wir Sie in einem persönlichen Besichtigungstermin vom Wohnkomfort dieser Immobilie.

Besondere Ausstattungsmerkmale/Durchgeführte Renovierungsmaßnahmen:

-Ca. 2017 Laminat verlegt, EG und OG
-Ca. 2018 Dachflächenfenster erneuert
-Ca. 2019 Photovoltaik-Anlage mit 5,8 kWp Leistung installiert (Leasing-Vertrag – Laufzeit 25 Jahre)
-Ca. 2021 Gas-Z.-Heizung erneuert (Thermondo Leasing-Vertrag – Laufzeit bis 2031)
-Ca. 2022 Jalousien im EG mit elektrischem Antrieb ausgestattet
-Ca. 2023 Markise mit elektrischem Antrieb installiert
-Kaminofen

Grundstück: ca. 871qm (Gartenanlage, Terrasse, Carport, Schuppen, Blockhaus)

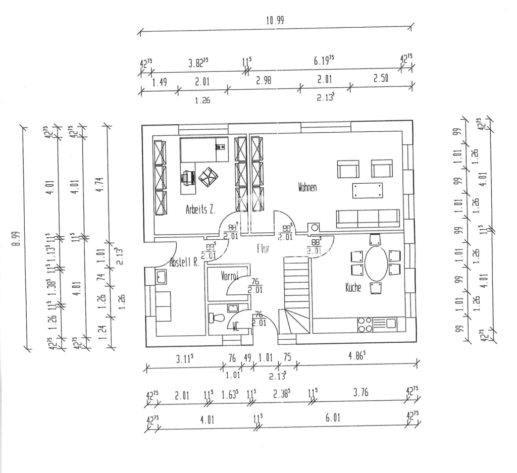
Gebäude: EG: Flur/Diele, Gäste-WC, HWR, Vorratsraum, Arbeits-/Gästezimmer, Wohnzimmer, Wohnküche

OG: Elternschlafzimmer, 2 Kinderzimmer, Vollbad

Gesamt: Wohn-/Nutzfläche ca. 134qm

Lage und Umfeld

26639 Wiesmoor (Ruhige, zentrale Wohnlage, Nähe zu den Städten Aurich und Leer, gute Verkehrsanbindung zur B-72, ausgewogene Infrastruktur, Nähe zum Golfplatz)

Lage und Umfeld

Wiesmoor

Courtage

Die Maklerprovision beträgt für den Käufer 3,57% vom Kaufpreis inkl. ges. MwSt.. auf den Kaufpreis ist mit Zustandekommen des Kaufvertrages (notarieller Vertragsabschluß) verdient und fällig. Die Vermittelnden und/oder Nachweisenden, BS Immobilien Kontor Büürma GmbH und ggf. deren Beauftragter, erhalten unmittelbaren Zahlungsanspruch gegenüber dem Käufer (Vertrag zugunsten Dritter, § 328 BGB). Alle Angaben sind ohne Gewähr und basieren ausschließlich auf Informationen, die uns von unserem Auftraggeber zur Verfügung gestellt wurden. Wir übernehmen keine Gewähr für die Vollständigkeit, Richtigkeit und Aktualität dieser Angaben. Die Grunderwerbsteuer, Notar- und Grundbuchkosten sind vom Käufer zu tragen. Im übrigen gelten unsere allgemeinen Geschäftsbedingungen. Irrtum und Zwischenverkauf vorbehalten.

Energieinformationen

Energieeffizienz

  • Energieausweis-Art: Verbrauch
  • Energieausweis gültig bis: 06.12.2026
  • Endenergieverbrauchskennwert: 35,70 kWh/(m²*a)
  • Warmwasser im Energieverbrauch enthalten: ja
  • Energieeffizienzklasse: A
  • Jahr der energetischen Sanierung: 2021
  • Primärenergieträger: Gas
  • Energieausweis-Gebäudeart: Wohngebäude
  • Heizungsart: Zentralheizung
Energieeffizienzklasse
A
Endenergieverbrauchskennwert
35,70 kWh/(m²*a)
  • A+
  • 35,70 kWh/(m²*a) | Energieeffizienzklasse A
    A
  • B
  • C
  • D
  • E
  • F
  • G

Besonderheiten

Weitere Details

  • Heizungsart: Zentralheizung
  • Courtage: Die Maklerprovision beträgt für den Käufer 3,57% vom Kaufpreis inkl. ges. MwSt..
  • Separate WCs: 1
  • Terrassen: 1
  • Zimmer insgesamt: 5
  • Wohneinheiten: 1.00
  • Befeuerung: Gas
  • Zustand: gepflegt
  • Immobilie ist verfügbar ab: nach Absprache
  • Erstellt am: 2024-04-30 09:28:45
  • Verkauft am: 2024-06-12

Grundrisse

  • Grundrisse EG
  • Grundriss OG
img
img

ICH FREUE MICH AUF IHRE ANFRAGE

Dennis Büürma

Standort Emden

Dennis Büürma
Faldernstraße 29
26725 Emden



Kontakt
aufnehmen

Anfrage zu diesem Objekt

Nicht die passende Immobilie gefunden?

Drucken oder teilen