Vergleiche Einträge

Unmittelbare Rheinlage! Eigentumswohnung über zwei Etagen mit überdachtem Stellplatz und Loggia!

50999 Köln, Sürth
Kaufpreis 319.900€
  • Icon
    Immobilien-Nr.
    E19B14401
  • Icon
    Wohnfläche
    82 m²
  • Icon
    Baujahr
    1996
  • Icon
    Schlafzimmer
    3
  • Icon
    Badezimmer
    2

Jetzt Exposé anfordern

Beschreibung

Diese gepflegte Maisonettewohnung befindet sich in einem Neunparteienhaus im beliebten Kölner Ortsteil Sürth. Das Mehrfamilienhaus wurde ca. 1996 in konventioneller Massivbauweise in zweiter Reihe zum Rhein erstellt. Für Ihren PKW steht ein überdachter Stellplatz direkt am Haus zur Verfügung. Vom einladenden Eingangsbereich eröffnet sich Ihnen der offen gestaltete und lichtdurchflutete Wohn-/Essbereich. Die großzügig angeordneten Fensterelemente sorgen für ein großartiges Raumgefühl. Die weißen Kunststofffenster sind mit angefertigten Plissees ausgestattet. Beheizt wird die Wohnanlage durch eine Gas-Z.-Heizung (BJ: 2019). In der ersten Etage der Wohnung erwartet Sie ein offener Wohn-/Essbereich mit Loggia, eine Küche, ein Schlafzimmer sowie ein Duschbad mit WC. Im Dachgeschoss befindet sich zwei weitere Zimmer und mit Bad mit Wanne u. WC. Gerne überzeugen wir Sie in einem persönlichen Besichtigungstermin von diesen tollen Immobilienangebot.

Besondere Ausstattungsmerkmale:

– Ca. 2016 Veluxfenster erneuert
– 2017 Glastüren eingebaut, Fußböden in der gesamten 2. Etage, erneuert
– Glastüren eingebaut
– 2019 Gas-Zentralheizung
– Unmittelbare Rhein-Nähe (Zweite Lage am Rhein)
– Überdachter Stellplatz direkt am Haus
– Maisonette-Wohnung über zwei Ebenen
– Separater Kellerverschlag, Gemeinschaftsfahrradkeller
– Dach isoliert, Loggia
– Duschbad mit Waschmaschinenanschluss
– Mtl. Hausgeld ca. 400 €

GrundstüGem. Eigentum

Gebäude:
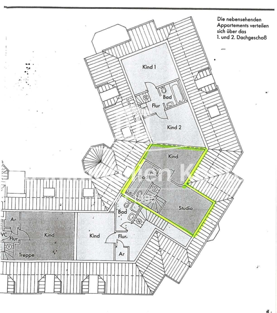
2. OG: Flur/Diele, offener Wohn-/Essbereich mit Zugang zur Loggia, Küche, Bad mit WC, Gäste-WC, Elternschlafzimmer, Treppenaufgang

DG:Flur/Diele, 2x Zimmer, Bad mit Wanne u. WC

Gesamt: Wohn-/Nutzfläche 82qm

Lage und Umfeld

50999 Köln OT. Sürth (Zentrale Lage, ausgewogene Infrastruktur, gute ÖPNV, S-Bahn 16, Buslinie 131/134, Einkaufsmöglichkeiten, Rewe, Lidl, Netto, Schulen, Kindergarten, Banken, Ärzte und Apotheken in der Nähe, angrenzend an der Sürther Aue, gute Verkehrsanbindung zur A4, A553 u. A555)

Lage und Umfeld

Sürth

Courtage

Die Maklerprovision beträgt für den Käufer 3,57% vom Kaufpreis inkl. ges. MwSt.. auf den Kaufpreis ist mit Zustandekommen des Kaufvertrages (notarieller Vertragsabschluß) verdient und fällig. Die Vermittelnden und/oder Nachweisenden, BS Immobilien Kontor Büürma GmbH und ggf. deren Beauftragter, erhalten unmittelbaren Zahlungsanspruch gegenüber dem Käufer (Vertrag zugunsten Dritter, § 328 BGB). Alle Angaben sind ohne Gewähr und basieren ausschließlich auf Informationen, die uns von unserem Auftraggeber zur Verfügung gestellt wurden. Wir übernehmen keine Gewähr für die Vollständigkeit, Richtigkeit und Aktualität dieser Angaben. Die Grunderwerbsteuer, Notar- und Grundbuchkosten sind vom Käufer zu tragen. Im übrigen gelten unsere allgemeinen Geschäftsbedingungen. Irrtum und Zwischenverkauf vorbehalten.

Energieinformationen

Energieeffizienz

  • Energieausweis-Art: Verbrauch
  • Energieausweis gültig bis: 18.02.2030
  • Endenergieverbrauchskennwert: 89,00 kWh/(m²*a)
  • Energieeffizienzklasse: C
  • Jahr der energetischen Sanierung: 2019
  • Primärenergieträger: Gas
  • Energieausweis-Gebäudeart: Wohngebäude
  • Heizungsart: Zentralheizung
Energieeffizienzklasse
C
Endenergieverbrauchskennwert
89,00 kWh/(m²*a)
  • A+
  • A
  • B
  • 89,00 kWh/(m²*a) | Energieeffizienzklasse C
    C
  • D
  • E
  • F
  • G

Besonderheiten

Weitere Details

  • Heizungsart: Zentralheizung
  • Anzahl Etagen: 2,0
  • Courtage: Die Maklerprovision beträgt für den Käufer 3,57% vom Kaufpreis inkl. ges. MwSt..
  • Separate WCs: 1
  • Balkone: 1
  • Zimmer insgesamt: 4
  • Befeuerung: Gas
  • Zustand: gepflegt
  • Immobilie ist verfügbar ab: Nach Absprache
  • Erstellt am: 2024-02-06 11:03:28
  • Verkauft am: 2024-03-11

Grundrisse

  • Etage 02
img

ICH FREUE MICH AUF IHRE ANFRAGE

Dennis Büürma

Standort Emden

Dennis Büürma
Faldernstraße 29
26725 Emden



Kontakt
aufnehmen

Anfrage zu diesem Objekt

Nicht die passende Immobilie gefunden?

Drucken oder teilen