Bitte geben Sie Ihren Benutzernamen oder Ihre E-Mail-Adresse ein. Sie erhalten einen Link, um ein neues Passwort per E-Mail zu erstellen.
Diese Immobilie wird Sie mit einem großzügigen Platzangebot für Mensch und Tier überraschen! Das Immobilienangebot präsentiert sich auf einem ca. 5.499qm großen Grundstück und überzeugt mit einer praktischen Raumaufteilung für die ganze Familie. Das Einfamilienhaus wurde 1954 in konventioneller Massivbauweise mit einem Satteldach erstellt. 2008 erfolgte der Anbau der sep. Einliegerwohnung. Das Grundstück bemisst ca. 5.499qm und liegt einer ruhigen, idyllischen Siedlungslage. Besonders hervorzuheben sind die vielseitigen Verwendungsmöglichkeiten dieser Immobilie und der gepflegte, renovierte Zustand. Beheizt wird die Immobilie durch eine Gas-Z.-Heizung. Die weißen Kunststofffenster sind Isolierverglast und teilweise mit Jalousien ausgestattet. In der Einliegerwohnung befindet sich ein derzeit außer Betrieb genommener Swimming-Pool. Eine Immobilie für Menschen und Individualisten die Wohnqualität mit Lebensqualität verbinden und im Einklang mit der Natur Ihren stressigen Alltag entfliehen möchten.
Besondere Ausstattungsmerkmale/Durchgeführte Renovierungsmaßnahmen:
-ca. 2001 Gas-Z.-Heizung erneuert
-Ca. 2005 Elektrik neu
-Ca. 2005 Spitzdach auf der Garage
-Ca. 2000-2005 Fenster
-Ca. 2012 Flachdach Anbau saniert
-Ca. 2014 Veluxfenster erneuert
-Ca. 2016 Badezimmer erneuert
-Ca. 2019 Einbauküche erneuert
-Ca. 2019/21 Vinyl und Laminat Böden erneuert
-Ca. 2020 Wohnzimmer renoviert
-4.000qm Weidefläche
-Fußbodenerwärmung im „Poolraum“
-Glasfaser in der Straße verlegt worden
-Dreikammer-System, 6000l Regenwasser
-Elektrisches Garagentor
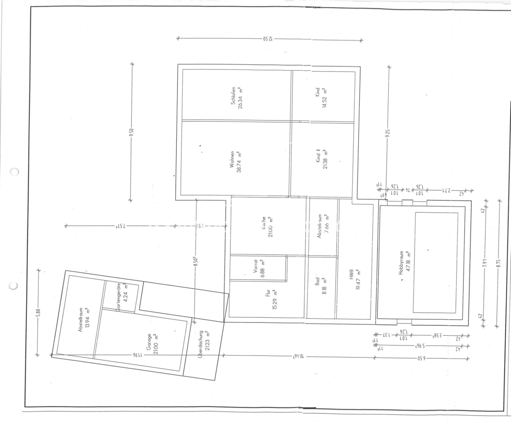
Grundstück: ca. 5.499qm (Gartenanlage, Weideland, Garage, große überdachte Terrasse)
Hauptwohnung:
EG: Flur/Diele, Gäste-WC, Badezimmer, Vollbad, Hochkeller, Küche, Wohnzimmer mit Kamin, Schlafzimmer
OG: Flur/Diele, 2x Schlafzimmer, Ausbaureserve
KG: 2 Räume
Einliegerwohnung:
EG: Flur/Diele mit Küchenzeile, Heizungsraum, Schlafzimmer, Wohnzimmer, Schlafzimmer, Poolraum mit Sauna, Dusche und Toilette
Gesamt: Wohn-/Nutzfläche ca. 258qm
