Vergleiche Einträge

Projektiertes Grundstück mit Baugenehmigung für neun Bungalows zu verkaufen!

26532 Großheide, Westerende
Kaufpreis 327.000€
  • Icon
    Immobilien-Nr.
    E19B58000
  • Icon
    Grundstück
    2241 m²

Jetzt Exposé anfordern

Beschreibung

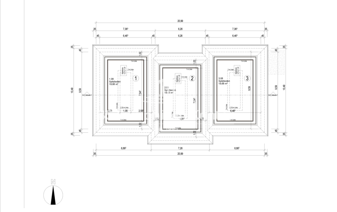
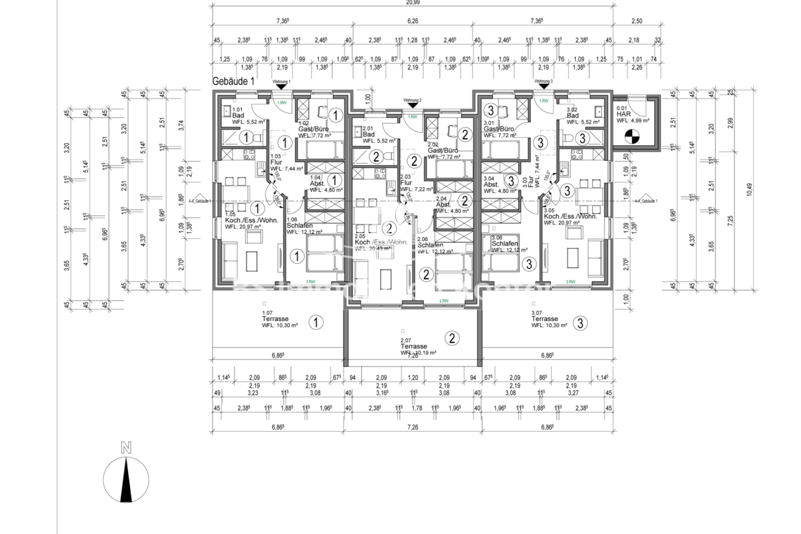
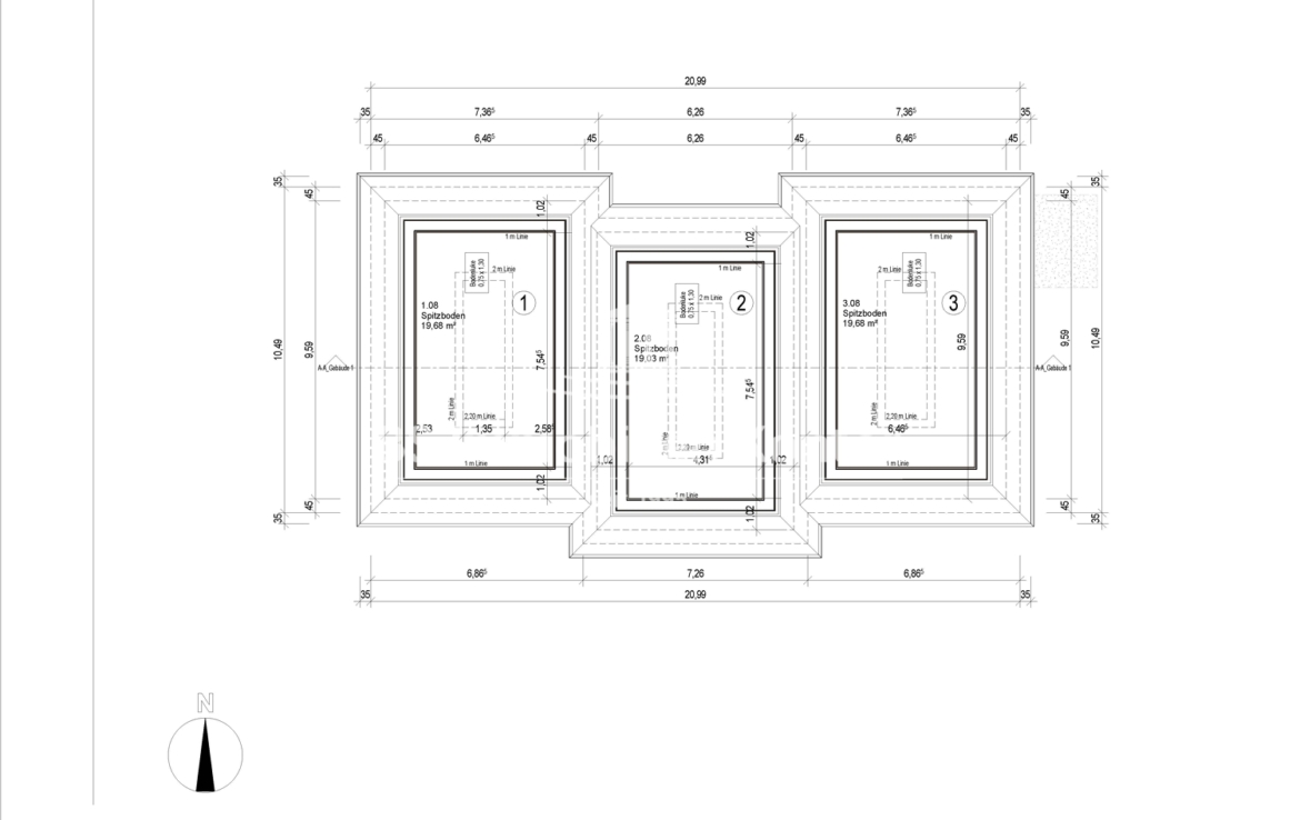
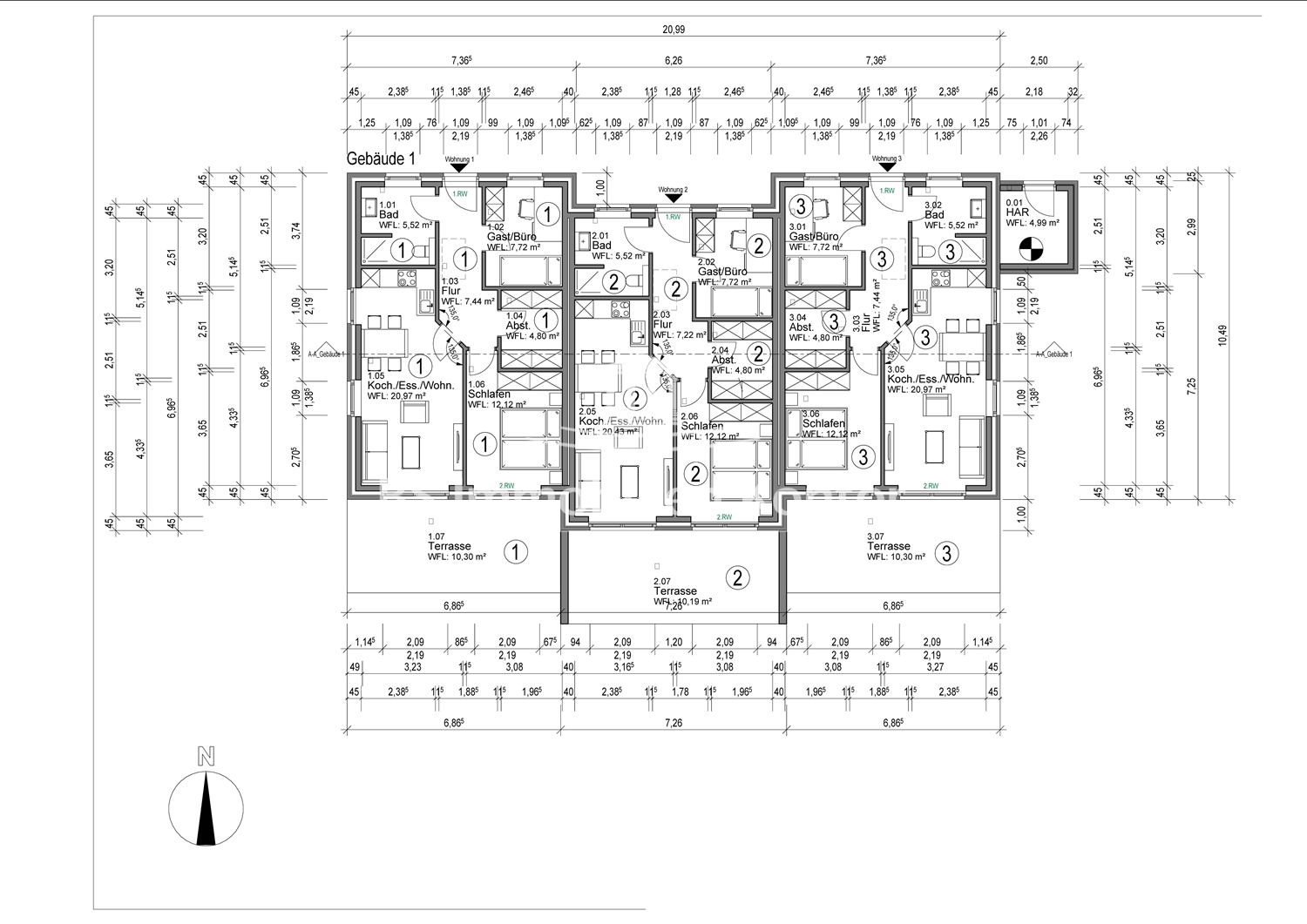
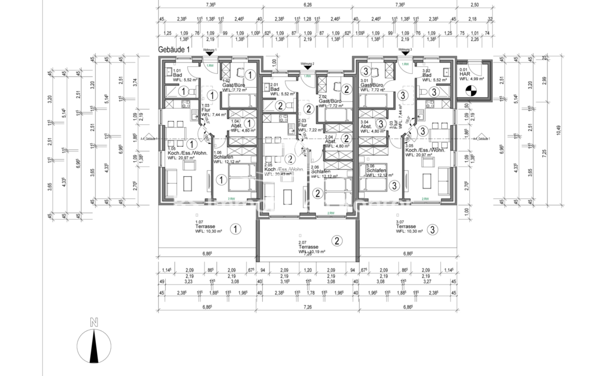
Zum Verkauf steht ein projektiertes Baugrundstück in der Gemeinde Großheide, Gemarkung Westerende, das sich besonders durch seine bereits vorliegende Baugenehmigung und die damit verbundene Möglichkeit eines kurzfristigen Baustarts auszeichnet. Geplant ist die Errichtung von insgesamt neun modernen Bungalows, verteilt auf drei Gebäude, wodurch ein überschaubares, zugleich aber wirtschaftlich äußerst attraktives Wohnprojekt realisiert werden kann. In Zeiten zunehmender Genehmigungsdauer bietet dieses Angebot einen entscheidenden Vorteil, da sämtliche planungsrechtlichen Voraussetzungen bereits erfüllt sind und unmittelbar mit der Bauausführung begonnen werden kann. Das rund 2.241 Quadratmeter große Grundstück ermöglicht die Schaffung einer gesamten Wohnfläche von etwa 806,63qm. Jeder der geplanten Bungalows verfügt über eine durchschnittliche Wohnfläche von circa 87 Quadratmetern und überzeugt durch eine zeitgemäße, funktionale Grundrissgestaltung. Das Konzept des ebenerdigen Wohnens entspricht einer stark nachgefragten Wohnform und bietet sowohl für Eigennutzer als auch für Mieter langfristige Attraktivität.Dieses Angebot richtet sich in besonderem Maße an Bauunternehmen, die auf der Suche nach einem genehmigten Grundstück sind, um freie Kapazitäten effizient auszulasten und ohne Verzögerung mit der Umsetzung eines klar definierten Bauprojekts zu beginnen. Gleichzeitig stellt das Projekt eine äußerst interessante Gelegenheit für Kapitalanleger dar, die Wohnraum für den eigenen Bestand schaffen und nachhaltig vermieten möchten. Neubau-Bungalows in barrierearmer Ausführung gelten als besonders wertstabil und sprechen eine breite Zielgruppe an, wodurch eine dauerhaft gute Vermietbarkeit gegeben ist.

Weitere Unterlagen und die Baugenehmigung erhalten Sie auf Anfrage!

Lage und Umfeld

26532 Großheide (Ruhige Wohnlage, Nordseeküstenregion, Einkaufsmöglichkeiten in nächster Nähe, gute ÖPNV, Nähe zur Hage und Golfplatz)

Lage und Umfeld

Westerende

Courtage

Die Maklerprovision beträgt für den Käufer 5,95% vom Kaufpreis inkl. ges. MwSt.. auf den Kaufpreis ist mit Zustandekommen des Kaufvertrages (notarieller Vertragsabschluß) verdient und fällig. Die Vermittelnden und/oder Nachweisenden, BS Immobilien Kontor Büürma GmbH und ggf. deren Beauftragter, erhalten unmittelbaren Zahlungsanspruch gegenüber dem Käufer (Vertrag zugunsten Dritter, § 328 BGB). Alle Angaben sind ohne Gewähr und basieren ausschließlich auf Informationen, die uns von unserem Auftraggeber zur Verfügung gestellt wurden. Wir übernehmen keine Gewähr für die Vollständigkeit, Richtigkeit und Aktualität dieser Angaben. Die Grunderwerbsteuer, Notar- und Grundbuchkosten sind vom Käufer zu tragen. Im übrigen gelten unsere allgemeinen Geschäftsbedingungen. Irrtum und Zwischenverkauf vorbehalten.

Besonderheiten

Weitere Details

  • Courtage: Die Maklerprovision beträgt für den Käufer 5,95% vom Kaufpreis inkl. ges. MwSt..
  • Wohneinheiten: 9.00
  • Immobilie ist verfügbar ab: Kurzfristig moeglich
  • Erstellt am: 2026-01-09 16:38:19

ICH FREUE MICH AUF IHRE ANFRAGE

Dennis Büürma

Standort Emden

Dennis Büürma
Faldernstraße 29
26725 Emden



Kontakt
aufnehmen

Anfrage zu diesem Objekt

Nicht die passende Immobilie gefunden?

Drucken oder teilen