Bitte geben Sie Ihren Benutzernamen oder Ihre E-Mail-Adresse ein. Sie erhalten einen Link, um ein neues Passwort per E-Mail zu erstellen.
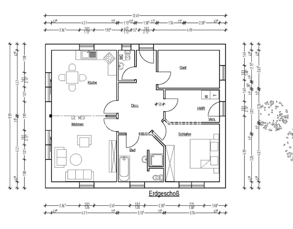
Lassen Sie sich von diesem Wohntraum überzeugen. Dieser Neubau Bungalow wird Ende 2024 von einem renommierten Bauunternehmen aus der Region auf einem schönen Grundstück in Osteel schlüsselfertig errichtet. Die äußerst ansprechende Raumaufteilung sowie die hellen Räume lassen die ca. 100qm große Wohnfläche lichtdurchflutet erscheinen. Das pflegeleicht angelegte Grundstück bemisst ca. 500qm. Jeder Bungalow verfügt über einen PKW-Stellplatz und eine nach Westen ausgerichtete Terrasse. Die Küche ist als offene Wohnküche geplant und lädt zum gemeinschaftlichen Kochen und Verweilen ein. Das Dachgeschoss dient als Stauraum und kann gegen Aufpreis ausgebaut werden. Das Objekt wird nach den aktuellen KFW-Vorschriften erstellt. Standardmäßig verfügt der Bungalow über folgende Ausstattung: Elektrische Jalousien, Dreifachverglaste Fenster, Fußbodenheizung, Raufaser tapeziert, hochwertige Fliesen, Vinyl-Design-Böden etc. Eine ausführliche Baubeschreibung erhalten Sie gerne auf Nachfrage. Sonderwünsche können gegen Aufpreis, sofern dies aufgrund des Baufortschrittes noch möglich ist, umgesetzt werden. Aufgrund der barrierefreien Anordnung der Räumlichkeiten eignet sich dieser Bungalow ideal als Altersruhesitz. Beheizt wird das Objekt durch eine
Luft-Wärmepumpe. Ein Objekt für Menschen die das „ebenerdige Wohnen“ bevorzugen.
Aufstellung der Besonderheiten:
-Schlüsselfertige Herstellung 2024
-Dreifachverglaste Fenster mit elektrischen Jalousien
-Fußbodenheizung komplett
-Energieeffiziente Luft-/Wärmepumpe
-Hochwertige Ausstattung (Fliesen oder Vinyl-Bodenbeläge, Malerarbeiten etc.)
-Terrasse und Einfahrt gepflastert
Grundstüca. 500qm (Gepflasterte Auffahrt und Terrasse, PKW-Einstellplatz)
Gebäude:
EG: Flur/Diele, Gäste WC, Gästezimmer, HWR, Elternschlafzimmer, Vollbad, offener Wohn-/Essbereich mit Küchenanschlüssen und Terrassenzugang
DG: Stauraum/Ausbaureserve
Gesamt: Wohnfläche ca. 100qm

Schlafzimmer: 4Baujahr: 1967m²: 135
Einfamilienhaus
vor 3 Tagen