Bitte geben Sie Ihren Benutzernamen oder Ihre E-Mail-Adresse ein. Sie erhalten einen Link, um ein neues Passwort per E-Mail zu erstellen.
Sie suchen ein neues Domizil in Papenburg? Hier werden Sie fündig. Dieses Immobilienangebot präsentiert sich in ruhiger, zentraler Lage von Papenburg-Bokel. Derzeit wird die Immobilie als Monteurunterkunft genutzt – 6 Schlafräume mit 12 Betten. Eine entsprechende Nutzungsgenehmigung liegt vor. Dieses renovierungsbedürftige Objekt wurde im Jahr 1967 in konventioneller Massivbauweise mit einem Satteldach erstellt. Im Laufe der Jahre erfolgten umfangreiche Renovierungsmaßnahmen (vgl. Aufstellung). Jede Etage verfügt über ein eigenes Bad. Die Küche mit Essbereich befindet sich im EG. Das Grundstück bietet Ihnen mit einer Fläche von ca. 809qm ausreichend Platz und Privatsphäre. Genießen Sie gemütliche Sonnenstunden auf der überdachten Terrasse in Südlage. Die weißen Kunststofffenster sind isolierverglast und teilweise mit Jalousien ausgestattet (überwiegend mit elektrischem Antrieb). Beheizt wird die Immobilie mit einer Gas-Z.-Heizung (Bj 2001).
Besondere Ausstattungsmerkmale/Durchgeführte Renovierungsmaßnahmen:
-2006 Dach gedämmt
-2012 Parkettfussboden in den Schlafräumen im EG verlegt
-2023/2024Brandschutztür zum Keller eingebaut
-2023/2024Heizungsrohre erneuert
-2023/20242. Waschbecken im Bad/EG eingebaut
Grundstück: ca. 809qm (1 Garagen, Carport, überdachte Terrasse, Gartenanlage
Gebäude:
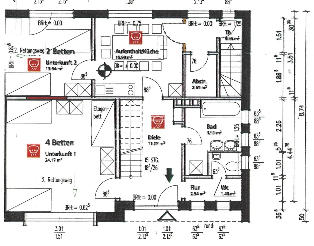
EG: Flur/Diele, Schlafraum (4 Betten), Schlafraum (2 Betten), Küche/Aufenthaltsraum, Abstellraum, Bad, Flur, WC
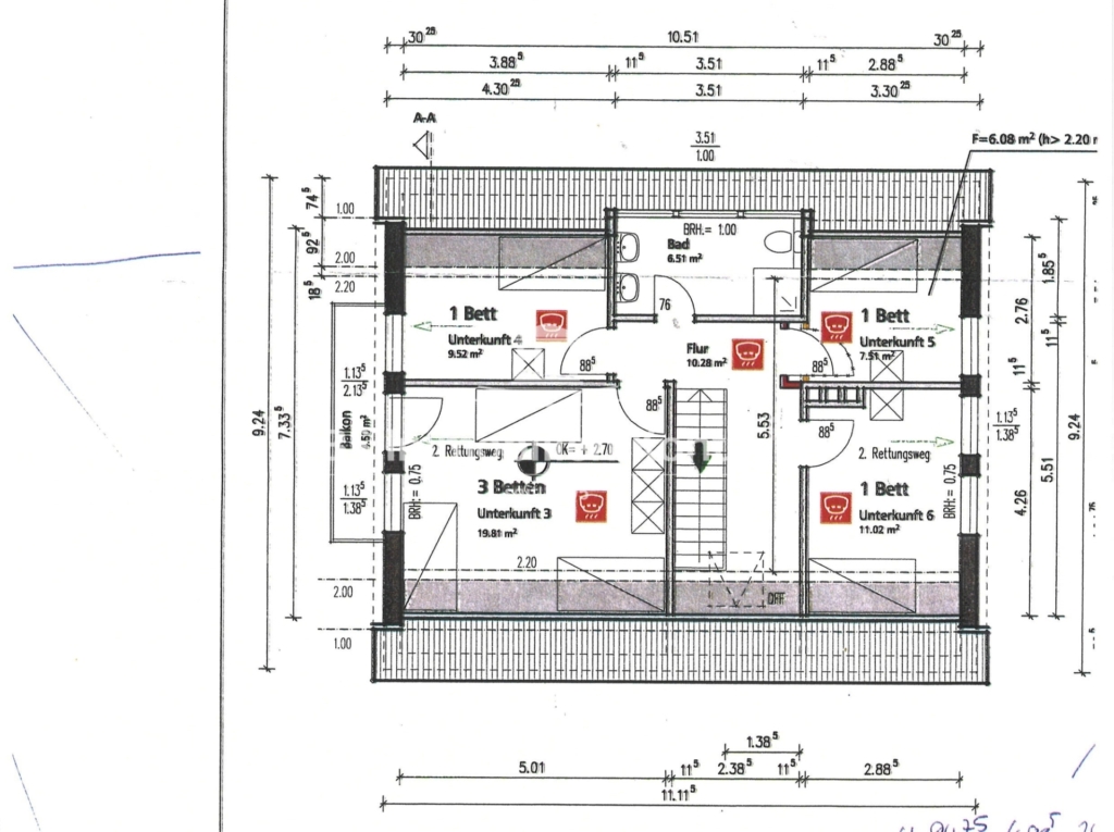
OG: Flur/Diele, Schlafraum (3 Betten), Schlafraum (1 Bett), Bad, Schlafraum (1 Bett), Schlafraum (1 Bett)
KG: Kellerraum (Heizungstherme)
Gesamt: Wohn-/Nutzfläche ca. 150qm

Schlafzimmer:: 1Baujahr: 2024m²: 58
Erdgeschosswohnung
vor 2 Wochen
Schlafzimmer:: 1Baujahr: 2025m²: 66
Erdgeschosswohnung
vor 2 Monaten
Schlafzimmer:: 1Baujahr: 2025m²: 56
Penthouse-Wohnung
vor 2 Monaten
***RESERVIERT***Monteursunterkunft! Einfamilienhaus mit Garage und überdachter Terrasse in zentraler, ruhiger Wohnlage! - 26871 Papenburg
***RESERVIERT***Monteursunterkunft! Einfamilienhaus mit Garage und überdachter Terrasse in zentraler, ruhiger Wohnlage! - 26871 Papenburg