Vergleiche Einträge

Kapitalanlage oder Eigennutzung! Mehrfamilienhaus mit drei Wohneinheiten und Carport in ruhiger, zentr. Lage!

26632 Ihlow,
Kaufpreis 279.000€
  • Icon
    Immobilien-Nr.
    E19993500
  • Icon
    Grundstück
    1448 m²
  • Icon
    Wohnfläche
    335 m²
  • Icon
    Baujahr
    1927
  • Icon
    Schlafzimmer
    7
  • Icon
    Badezimmer
    5

Jetzt Exposé anfordern

Beschreibung

Dieses großzügige Mehrfamilienhaus mit drei Wohneinheiten befindet sich in einer zentralen Wohnlage von Ihlow und wurde ca. 1927 neu aufgebaut/umgebaut. Die Errichtung erfolgte konventioneller Massivbauweise. Weitere Erweiterungen und Umbauten erfolgten in den darauf folgenden Jahrzehnten (1952, 1978, 1998). Die OG-Wohnung ist derzeit vermietet. Die Wohnungen Nr. 1 + 2 sind z. Zt. nicht vermietet. Das Grundstück bemisst eine Größe von ca. 1.448qm und liegt in einer ruhigen, idyllischen Lage von Ihlow. Beheizt wird das Objekt durch eine Gas-Z.-Heizung (BJ 2005). Die weißen Kunststofffenster sind mit einer Isolierverglasung ausgestattet. Ein interessantes Immobilienangebot mit vielseitigen Verwendungsmöglichkeiten (Eigennutzung, Kapitalanlage, Mehrgenrationen-Wohnen etc.). Gerne überzeugen wir Sie vom Platzangebot dieser Immobilie in einer persönlichen Besichtigung.

Durchgeführte Renovierungen/Besondere Ausstattungsmerkmale:

– Carport, PKW-Stellplätze
– Gas-Zentral-Heizung BJ 2005
– Glasfaseranschluss liegt vor dem Haus
– Drei Wohneinheiten

Grundstüca. 1.448qm (Carport, PKW-Stellplätze, Terrassen, Gartenanlage)

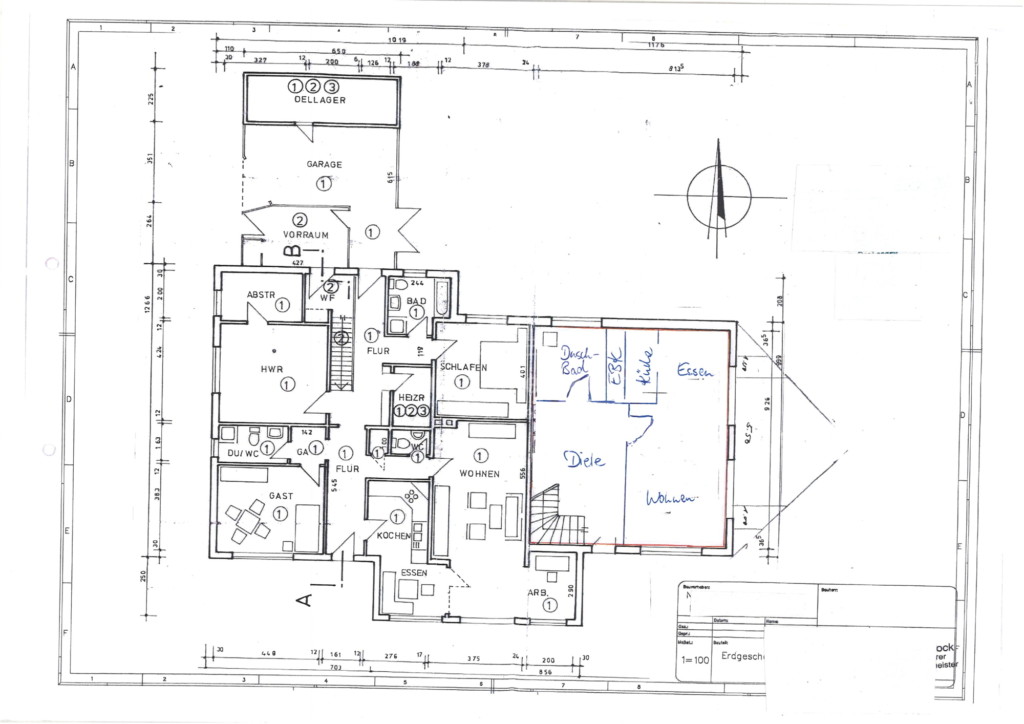
Gebäude Whg. 1EG: Flur/Diele, Schlafzimmer, behindertenger. Duschbad, Küche mit Essbereich, Wohnzimmer, Gäste WC, HWR, Abstellraum, Heizung, behindertenger. Duschbad, Schlafzimmer, Terrasse Wfl. ca. 125qm

Whg. 2 EG: Großer Flur, Wohnzimmer, Küche, behindertenger. Duschbad, Terrasse
OG: Flur/Diele, 2 x Zimmer, kl. Bad, HWR; Wfl. ca. 110qm

Whg. 3 OG: Flur, Elternschlafzimmer, Wohnzimmer, Kinderzimmer, Bad, Gäste WC, Kinderzimmer, Küche, Speisekammer, Büro; Wfl. ca. 100qm

Gesamt: Vermietbare Fläche ca. 335qm

Lage und Umfeld

26632 Ihlow (Ruhige, idyllische Wohnlage, Einkaufsmöglichkeiten für den täglichen Bedarf , Combi, Banken, Rathaus, etc. vor Ort, gute Verkehrsanbindung zur A-31, Nähe zu den Städten Emden und Leer)

Courtage

Die Maklerprovision beträgt für den Käufer 5,95 % vom Kaufpreis inkl. der ges. MwSt. auf den Kaufpreis ist mit Zustandekommen des Kaufvertrages (notarieller Vertragsabschluß) verdient und fällig. Die Vermittelnden und/oder Nachweisenden, BS Immobilien Kontor Büürma GmbH und ggf. deren Beauftragter, erhalten unmittelbaren Zahlungsanspruch gegenüber dem Käufer (Vertrag zugunsten Dritter, § 328 BGB). Alle Angaben sind ohne Gewähr und basieren ausschließlich auf Informationen, die uns von unserem Auftraggeber zur Verfügung gestellt wurden. Wir übernehmen keine Gewähr für die Vollständigkeit, Richtigkeit und Aktualität dieser Angaben. Die Grunderwerbsteuer, Notar- und Grundbuchkosten sind vom Käufer zu tragen. Im übrigen gelten unsere allgemeinen Geschäftsbedingungen. Irrtum und Zwischenverkauf vorbehalten.

Energieinformationen

Energieeffizienz

  • Energieausweis-Art: Bedarf
  • Energieausweis gültig bis: 03.02.2033
  • Endenergiebedarf: 172,60 kWh/(m²*a)
  • Energieeffizienzklasse: F
  • Jahr der energetischen Sanierung: 2005
  • Primärenergieträger: Gas
  • Heizungsart: Zentralheizung
Energieeffizienzklasse
F
Endenergieverbrauchskennwert
172,60 kWh/(m²*a)
  • A+
  • A
  • B
  • C
  • D
  • E
  • 172,60 kWh/(m²*a) | Energieeffizienzklasse F
    F
  • G

Besonderheiten

Weitere Details

  • Heizungsart: Zentralheizung
  • Courtage: Die Maklerprovision beträgt für den Käufer 5,95 % vom Kaufpreis inkl. der ges. MwSt.
  • Terrassen: 2
  • Zimmer insgesamt: 11
  • Vermietbare Fläche: 335 m²
  • Befeuerung: Gas
  • Zustand: gepflegt
  • Immobilie ist verfügbar ab: Nach Absprache
  • Erstellt am: 2023-02-03 08:59:01
  • Verkauft am: 2023-04-04

Grundrisse

  • Grundriss EG
  • Grundriss OG
img
img

ICH FREUE MICH AUF IHRE ANFRAGE

Anfrage zu diesem Objekt

Ähnliche Objekte

Schlafzimmer: 3Baujahr: 1993m²: 190

Einfamilienhaus

Dennis Büürma

vor 2 Wochen

675.000€

Schlafzimmer: 3Baujahr: 1993m²: 190

Icon Grundstücksgröße 12641 m²
Objektnr.: E19B62500
675.000€

Nicht die passende Immobilie gefunden?

Drucken oder teilen