Vergleiche Einträge

Idealer Altersruhesitz! Schlüsselfertiger Neubaubungalow mit Terrasse, Carport und Gartenanlage in ruhiger Wohnlage!

26506 Norden, Norden
Kaufpreis 305.000€
  • Icon
    Immobilien-Nr.
    E87900
  • Icon
    Grundstück
    650 m²
  • Icon
    Wohnfläche
    110 m²
  • Icon
    Baujahr
    2019
  • Icon
    Schlafzimmer
    2
  • Icon
    Badezimmer
    1

Jetzt Exposé anfordern

Beschreibung

Dieser Neubaubungalow wird 2019 schlüsselfertig errichtet und liegt in einer ruhigen, bevorzugten Wohnlage von Norden. Das pflegeleichte Grundstück (Süd-West-Ausrichtung) bemisst ca. 650 qm. Die Ausstattung dieses Neubaubungalows erstreckt sich über: Dreifachverglaste
Fenster, Fußbodenheizung, elektrischen Jalousien, Raufaser tapeziert, moderne Vinylböden oder hochwertige Fliesen etc.. Eine ausführliche Baubeschreibung erhalten Sie auf Anfrage. Aufgrund der barrierefreien Anordnung der Räumlichkeiten eignet sich dieser Bungalow besonders als Altersruhesitz. Beheizt wird das Objekt durch eine Gas-Z.-Heizung. Die weißen Kunststofffenster sind dreifachverglast und mit elektrischen Jalousien ausgestattet. Ein Objekt für Menschen die das „ebenerdiges Wohnen“ bevorzugen und Norden als Wohnort zu schätzen wissen.

Aufstellung der Besonderheiten:

-Schlüsselfertige Herstellung 2019, Sonderwünsche nach Rücksprache
-Inkl. Carport, Garage optional (gegen Aufpreis)
-Dreifachverglaste Fenster mit elektrischen Jalousien
-Fußbodenheizung
-Hochwertige Fliesenauswahl oder moderne Vinylböden
-Malerarbeiten (Raufaser)
-Terrasse und Einfahrt gepflastert

Grundstück: ca. 650 qm (Pflasterung der Auffahrt und Terrasse)

Gebäude:
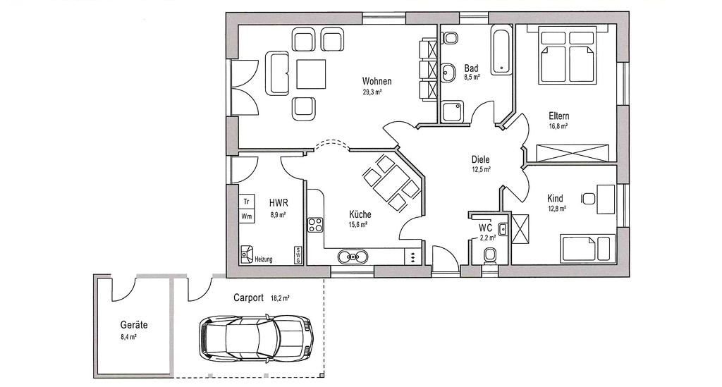
EG: Flur/Diele, Gäste WC, 2x Kinderzimmer, Elternschlafzimmer, Bad, offener Wohn-/Essbereich mit Küchenanschlüssen, HWR, Garage/Carport, Geräte

DG: Stauraum

Gesamt:
Wohnfläche ca. 110 qm
Nutzfläche Carport ca. 20 qm

Lage und Umfeld

26506 Norden (Ruhige, zentrale Wohnlage, Stadtkern Norden fußläufig erreichbar, Einkaufsmöglichkeiten, Aldi, Combi, Bäcker und Ärzte in direkter Nähe, Norddeich nur wenige PKW-Min. entfernt, Nähe zu den ostfriesischen Inseln)

Lage und Umfeld

Norden

Courtage

5,00 % zzgl. ges. MWSt auf den Kaufpreis ist mit Zustandekommen des Kaufvertrages (notarieller Vertragsabschluß) verdient und fällig. Die Vermittelnden und/oder Nachweisenden, BS Immobilien Kontor Büürma GmbH und ggf. deren Beauftragter, erhalten unmittelbaren Zahlungsanspruch gegenüber dem Käufer (Vertrag zugunsten Dritter, § 328 BGB). Alle Angaben sind ohne Gewähr und basieren ausschließlich auf Informationen, die uns von unserem Auftraggeber zur Verfügung gestellt wurden. Wir übernehmen keine Gewähr für die Vollständigkeit, Richtigkeit und Aktualität dieser Angaben. Die Grunderwerbsteuer, Notar- und Grundbuchkosten sind vom Käufer zu tragen. Im übrigen gelten unsere allgemeinen Geschäftsbedingungen. Irrtum und Zwischenverkauf vorbehalten.

Energieinformationen

Energieeffizienz

  • Energieausweis-Art: Bedarf
  • Energieausweis gültig bis: 13.11.2028
  • Endenergiebedarf: 69,40 kWh/(m²*a)
  • Energieeffizienzklasse: B
  • Jahr der energetischen Sanierung: 2019
  • Primärenergieträger: Gas
  • Heizungsart: Zentralheizung
Energieeffizienzklasse
B
Endenergieverbrauchskennwert
69,40 kWh/(m²*a)
  • A+
  • A
  • 69,40 kWh/(m²*a) | Energieeffizienzklasse B
    B
  • C
  • D
  • E
  • F
  • G

Weitere Details

  • Heizungsart: Zentralheizung
  • Courtage: 5,00 % zzgl. ges. MWSt
  • Nutzfläche: 20 m²
  • Separate WCs: 1
  • Terrassen: 1
  • Zimmer insgesamt: 3
  • Befeuerung: Gas
  • Zustand: Erstbezug
  • Immobilie ist verfügbar ab: nach Fertigstellung
  • Erstellt am: 2018-12-05 11:46:17
  • Verkauft am: 2019-12-03

Grundrisse

  • Erdgeschoss
  • Ansicht
img
img

ICH FREUE MICH AUF IHRE ANFRAGE

Anfrage zu diesem Objekt

Ähnliche Objekte

72.500€

Schlafzimmer:: 1Baujahr: 1974m²: 41

Objektnr.: E19B57110
72.500€

Schlafzimmer: 5Baujahr: 1987m²: 230

Einfamilienhaus

Dennis Büürma

vor 3 Monaten

599.000€

Schlafzimmer: 5Baujahr: 1987m²: 230

Icon Grundstücksgröße 1600 m²
Objektnr.: E19B45911
599.000€

Nicht die passende Immobilie gefunden?

Drucken oder teilen