Bitte geben Sie Ihren Benutzernamen oder Ihre E-Mail-Adresse ein. Sie erhalten einen Link, um ein neues Passwort per E-Mail zu erstellen.
Diese gepflegte Wohnimmobilie wurde 1999 mit einem Satteldach und sep. Garage/Werkstatt in Massivbauweise erstellt. Die vorhandenen Kunststofffenster (weiß) verfügen über innenliegende Sprossen und sind mit Iso-Verglasung sowie Außenrolladen ausgestattet. Beheizt wird die Immobilie durch eine Gas-Z-Heizung mit separatem Warmwasserspeicher. Alle Versorgungsanlagen befinden sind in einem gewarteten und einwandfreien Zustand. Im Laufe der Jahre wurden Modernisierungs- und Renovierungsarbeiten durchgeführt. So wurden zB. im Jahr 2010 neue Boden-fliesen im Flurbereich verlegt, 2013 neue Schränke/Möbel für den HWR angeschafft und im Jahr 2021 eine neue überdachte Terrasse (Glasdach) geschaffen. Bis auf das Wohnzimmer (Echtholzparkett) u. Küche (Vinyl in Holzdekor Optik) sind alle anderen Böden mit schönen sowie unempfindlichen Fliesen versehen. Hervorzuheben ist der wohnliche Grundcharakter des Objektes mit seinen hellen und lichtdurchfluteten Bereichen. Aufgrund der durchdachten Raumaufteilung ist ein barrierefreies Wohnen gewährleistet. Eine schöne Immobilie im fairen Pries/Leistungsverhältnis.
ENEV 2013 :BJ Gebäude: 1999, BJ Anlagentechnik: 1999, Energieträger: Erdgas,
Ausweistyp: Verbrauchsausweis, Energieverbrauch: 148,7kWh/(m²a), Energieeffizienzklasse: E
Die Maklerprovision beträgt für den Käufer 2,5% von dem Kaufpreis zzgl. der gesetzlichen Umsatzsteuer.
Weitere Fotos und Zeichnungen zu diesem Objekt erhalten Sie auf unserer Website unter: www.bs-immobilienkontor.de oder unter Tel: 04952-952940 sowie Handy: 0172-7611646 (Büro Rhauderfehn, Herr A. Spellbring)
Auch während der Corona-Pandemie bieten wir Ihnen Besichtigungstermine an.
Selbstverständlich wahren wir eine gebührende Distanz und führen nur Einzeltermine unter Einhaltung der Hygienevorschriften durch.
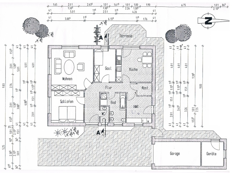
Gepflegtes Einfamilienhaus mit Garage/Werkstatt, Geräteschuppen und überd. Terrasse in ruhiger Wohnlage im Ortskernbereich.
Grundstück:
ca. 712 qm (teilw. nicht einsehbares Grundstück mit angelegtem Garten, Rasenflächen, Glashaus, Hochbeet)
Baujahr:
1999 (gepflegter Allgemeinzustand, ständig renoviert u. modernisiert, siehe Ausstattung )
Aufteilung:
EG: Diele, Wohnzimmer, Wohnküche mit EBK u. Terrassenzugang, Gäste-WC, Bad, HWR
mit Seiteneingang rückw. Gartenbereich, Schlafzimmer, Gästezimmer/Büro, Abstellraum,
OG: Dachboden, voll ausbaufähig (Versorgungsleitungen wie Gas/Wasser/Strom vorhanden)
ges. ca. 94 qm Wohnfläche zzgl. 25 qm Nutzfläche + Geräteschuppen

Schlafzimmer: 2Baujahr: 2023m²: 77
DG-Wohnung
vor 3 Monaten
Grundstück (Wohnbebauung)
vor 4 Monaten
zum Exposé Schlafzimmer: 2Baujahr: 2027m²: 75
Einfamilienhaus
vor 2 Monaten