Bitte geben Sie Ihren Benutzernamen oder Ihre E-Mail-Adresse ein. Sie erhalten einen Link, um ein neues Passwort per E-Mail zu erstellen.
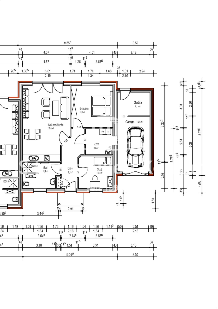
Lassen Sie sich von diesem ebenerdigen Wohntraum überzeugen. Dieser Bungalow wurde 2014 von einem renommierten Bauunternehmen aus der Region auf einem zentral gelegenen Grundstück in Ostrhauderfehn schlüsselfertig errichtet. Die äußerst ansprechende Raumaufteilung sowie die bodentiefen Fenster, lassen die ca. 83qm große Wohnfläche lichtdurchflutet und weitläufig erscheinen. Das pflegeleicht angelegte Grundstück bemisst ca. 300qm. Die Bungalowhaushälfte verfügt über eine eigene Garage und eine nach Westen ausgerichtete Terrasse. Die Küche wurde als offene Wohnküche geplant und lädt zum gemeinschaftlichen Kochen und Verweilen ein. Der über die Bodentreppe erreichbare Dachboden ist ebenfalls sehr großflächig und bietet Ihnen ausreichend Abstellmöglichkeiten. Standardmäßig verfügt der Bungalow über folgende Ausstattung: Elektrische Jalousien, Dreifachverglaste Fenster, Fußbodenheizung, Raufaser tapeziert etc. Aufgrund der barrierefreien Anordnung der Räumlichkeiten eignet sich dieser Bungalow ideal als Altersruhesitz. Beheizt wird das Objekt durch eine Gas Zentralheizung. Ein Objekt für Menschen die das „ebenerdige Wohnen“ bevorzugen. Zögern Sie nicht uns zu kontaktieren und vereinbaren Sie gerne einen Besichtigungstermin.
Aufstellung der Besonderheiten:
-Dreifachverglaste Fenster mit elektrischen Jalousien
-Fußbodenheizung komplett
-Malerarbeiten (Raufaser)
-Terrasse und Einfahrt gepflastert
-Garage
Grundstück: ca. 300qm (Gepflasterte Auffahrt und Terrasse, PKW-Einstellplatz)
Gebäude: EG: Flur/Diele, Gäste WC, Duschbad mit WC, Gästezimmer, HWR, offener Wohn-/Essbereich mit Küchenanschlüssen und Zugang zur Terrasse, Abstellraum, Schlafzimmer, Garage mit Geräteraum
DG: Stauraum
Gesamt: Wohnfläche ca. 83qm

zum Exposé Baujahr: 2024
Mehrfamilienhaus
vor 5 Monaten
Schlafzimmer: 7Baujahr: 2024m²: 283
Mehrfamilienhaus
vor 4 Monaten
zum Exposé Schlafzimmer: 3Baujahr: 2025m²: 92
Einfamilienhaus
vor 1 Monat