Bitte geben Sie Ihren Benutzernamen oder Ihre E-Mail-Adresse ein. Sie erhalten einen Link, um ein neues Passwort per E-Mail zu erstellen.
Dieses Immobilienangebot präsentiert sich in einer ruhigen Wohnlage von Warsingsfehn und wurde ca. 1972 in konventioneller Massivbauweise mit einem Satteldach erstellt. Das Zweifamilienhaus überzeugt durch eine zentrale Lage und liegt geografisch zwischen Emden, Leer und Aurich. Das großzügige Grundstück bemisst ca. 914qm und bietet Ihnen ausreichend Platz zum Entspannen & Relaxen. Die Immobilie ist derzeit in zwei Wohnungen (EG/OG) aufgeteilt und lässt sich individuell nutzen (Mehrgenerationen-Wohnen, Vermietung, komplette Eigennutzung etc.). Beheizt das Objekt durch eine Gas-Z.-Heizung (BJ: 2019). Die weißen Holzfenster sind Isolierverglast und mit Jalousien ausgestattet. Besonders hervorzuheben ist das großzügige Platzangebot und die zentrale Lage dieser Immobilie.
Aufstellung der durchgeführten Renovierungen/Besonderheiten:
-2015 Erneuerung Bad im OG
-2015 Garagendach erneuert inkl. Isolierung
-2019 Gas-Z.-Heizung erneuert
-Elternschlafzimmer EG kompl. renoviert inkl. der Fenster
-Wintergarten mit Fußbodenerwärmung, Sandwich-Platten erneuert
-Teilweise Parkettböden
-Dach isoliert
Grundstück: ca. 914qm (Gartenanlage, Terrasse, Garage, PKW-Einstellplätze)
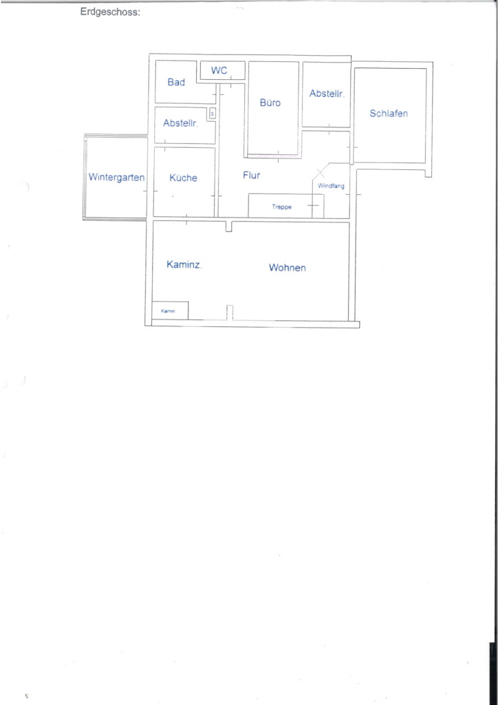
Gebäude:
EG: Windfang, Flur/Diele, Küche, Wintergarten, großer offener Wohn-/Essbereich mit Kamin, Elternschlafzimmer, 2x Kinderzimmer, Abstellraum, Bad, Gäste WC; Wfl. ca. 139qm
OG: Flur/Diele, Wohnzimmer, Küche, Bad, 2x Schlafzimmer, Abstellraum,
Wfl. ca. 72qm
Gesamt: Wohn-/Nutzfläche ca. 211qm

Baujahr: 1950
Mehrfamilienhaus
vor 1 Monat
Schlafzimmer:: 1Baujahr: 2023m²: 87
Etagenwohnung
vor 1 Monat
Grundstück (Wohnbebauung)
vor 2 Monaten