Bitte geben Sie Ihren Benutzernamen oder Ihre E-Mail-Adresse ein. Sie erhalten einen Link, um ein neues Passwort per E-Mail zu erstellen.
Sie suchen ein Wohlfühlort in Greetsiel? Hier werden Sie fündig! Dieses Immobilienangebot präsentiert sich in bevorzugter Lage nahe dem Greetsieler Hafen und lässt keine Wünsche offen. Das top gepflegte Einfamilienhaus wurde 2009 in konventioneller Massivbauweise mit einem Satteldach errichtet. Das Haus besticht durch eine zeitlose Architektur und der Möglichkeit des „ebenerdigen Wohnens“. In dieser Immobilie erwartet Sie ostfriesische Gemütlichkeit und ein hohes Maß an Wohnkomfort. Das Haus empfängt Sie in einer ruhigen Siedlungslage und bietet Ihnen auf einem ca. 500qm großen Grundstück ausreichend Privatsphäre. Genießen Sie lange Sommerabende auf den großzügig angelegten Terrassen. Die formschönen Kunststofffenster sind mit einer Iso-/Sprossenverglasung und Jalousien ausgestattet. Beheizt wird das Objekt durch eine Gas-Z.-Heizung (BJ: 2009). Eine Immobilie für Menschen, die Wohnqualität mit Lebensqualität verbinden und dieses seltene Immobilienangebot zu schätzen wissen.
Besondere Ausstattungsmerkmale/Durchgeführte Renovierungsmaßnahmen:
-2011 Garage erstellt
-Sprossenverglaste Fenster mit Jalousien (teilweise elektrisch)
-Fußbodenerwärmung in den Bädern, Flur und Küche
-Fußläufige Entfernung zum Greetsieler Hafen
Grundstück: ca. 500qm (Gartenanlage, 2x Terrasse, Blockhaus, Garage)
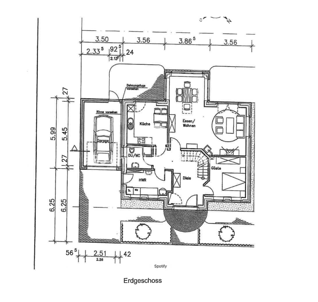
EG: Flur/Diele, Hausanschlussraum, Schlafzimmer, offener Wohn-/Essbereich, Küche, Duschbad mit WC, HWR,
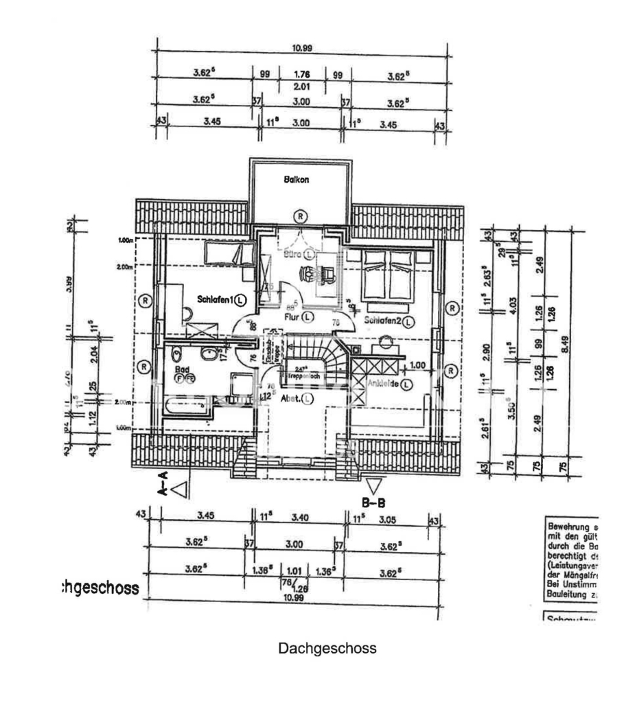
OG: Flur/Diele, Elternschlafzimmer mit Ankleide, Kinderzimmer, Arbeitszimmer, kleines Zimmer, Vollbad
Gesamt: Wohnfläche ca. 140qm

Schlafzimmer: 2Baujahr: 2023m²: 75
Etagenwohnung
vor 4 Monaten
Schlafzimmer: 2Baujahr: 2000m²: 65
Doppelhaushälfte
vor 1 Monat
zum Exposé Schlafzimmer: 4Baujahr: 1958m²: 180
Einfamilienhaus
vor 4 Tagen