Bitte geben Sie Ihren Benutzernamen oder Ihre E-Mail-Adresse ein. Sie erhalten einen Link, um ein neues Passwort per E-Mail zu erstellen.
Dieses nostalgische Einfamilienhaus wurde ca. 1899 in Massivbauweise mit einem Satteldach erstellt und im Laufe der Zeit um eine Doppelgarage sowie massive Nebengebäude erweitert. Das ursprüngliche Baujahr ist eher relativ zu bewerten, da es in den Jahren modernisiert sowie um- und ausgebaut wurde. Beheizt wird die Immobilie durch ein Gas-Z-Heizung (Einbau 2017) und einen zusätzlichen Kaminofen im Wohnbereich. Die vorhandenen Kunststofffenster (weiß) verfügen über Iso-Verglasung. Als Bodenbeläge wurden Fliesen, PVC und Laminat verlegt. Alle Versorgungsanlagen befinden sich in einem gewarteten und guten Allgemeinzustand. Besonders hervorzuheben ist das urige u. wohnliche Ambiente der Immobilie. Die teilw. freie Balkenlage schafft Gemütlichkeit und ein besonderes Raumgefühl. Die Innenwände wurden zum größten Teil (stilsicher) mit Lehmputz (weiß getüncht) versehen und runden das Bild dieser schönen Ausgestaltung ab. Aufgrund der sinnvollen Aufteilung der Räumlichkeiten, besteht die Möglichkeit, im Dachgeschoss eine separate Ferienwohnung zu integrieren. Liebhaber nostalgischer Gemäuer werden hier sicherlich auf Ihre Kosten kommen. Als absolutes Highlight ist der traumhafte rückwärtige Garten mit großer überd. Veranda / Terrasse von ca. 24 m². Von hier aus hat man einen grandiosen Blick über das Sieltief , welches auch mit einem Boot bis hin zum Fischerreidorf Ditzum befahren werden kann. Daher werden gerade Individualisten, Naturliebhaber und Aussteiger dieses eher seltene Kaufangebot zu schätzen wissen. Denn wer kann schon mit dem Boot zum Brötchen holen fahren…?
ENEV 2013 :
Baujahr Gebäude: 1899, Baujahr Anlagentechnik: 2017, Energieträger: Erdgas, Ausweistyp: Bedarfsausweis, Energieverbrauch: 238,8 kWh/(m²a), Effkl: G
Die Maklerprovision beträgt für den Käufer 3,57% vom Kaufpreis inkl. ges. MwSt..
Nostalgisches Einfamilienhaus mit teilw. freiliegender Balkenlage, eigenem Bootsanleger (Top für Angler u. Naturliebhaber; der Sielkanal hat direkten Anschluss zur Ems u. d. Ditzumer Hafen), gr. überd. Veranda (ca.24 m²), Gartenhaus, Kaminofen, Internet mit Glasfaseranschluss, Doppelgarage, Nebengebäude und KfZ-Stellplätze in ruhiger Wohnlage am Sieltief
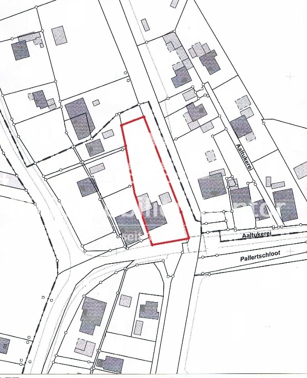
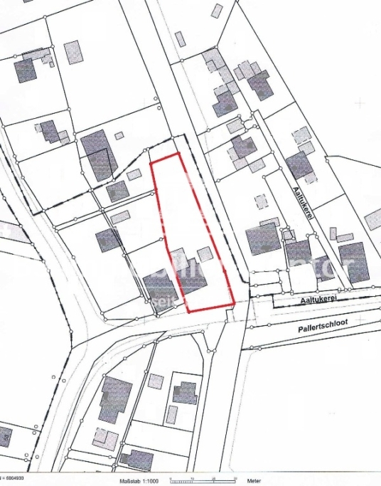
Grundstück:
ca. 1.389 m² (nicht einsehbarer rückw. Garten mit Rasenflächen, überd. Terrasse, Schuppen sowie eigenem Bootsanleger am Sielkanal
Baujahr:
ca. 1899 (im Laufe der Jahre ständig renoviert/ saniert sowie um- u. ausgebaut, siehe Beschreibung)
Aufteilung:
EG: Diele mit Steintreppe zum DG (ca.20 m²) , Wohnzimmer mit Kaminofen und Zugang zur überd. Terrasse (ca.56 m²), 2 Schlafzimmer (ca.18 m² u. ca.15 m²), Ankleide (ca.10 m²), Flur (ca.5,00 m²), Vollbad (ca.10 m²), Wohnküche inkl. EBK (ca.18 m²), Abstellr. (ca.9 m²),
DG: Schlafzimmer (ca.12 m²), Kinderzimmer/Büro (ca. 8 m²), Wohn/Essküche (ca.48 m²), Duschbad/WC (ca. 4 m²),
ges. ca. 230 m² Wohnfläche zzgl. Nutzfläche u. Keller

Schlafzimmer: 5Baujahr: 1895m²: 169
Einfamilienhaus
vor 2 Wochen