Bitte geben Sie Ihren Benutzernamen oder Ihre E-Mail-Adresse ein. Sie erhalten einen Link, um ein neues Passwort per E-Mail zu erstellen.
Erstbezug – diese moderne Neubau Wohnung befindet sich in zentraler Lage von Riepe. Die komfortable Ausstattung lässt keine Wünsche offen (s. Ausstattungsmerkmale) und das gelungene Raumkonzept überzeugt Jung und Alt. Die Wohnung ist barrierefrei. Beheizt wird das Objekt durch eine Gas-Zentral-Heizung. Die Kunststofffenster sind Dreifachverglast und mit Jalousien ausgestattet. Im Außenbereich steht Ihnen ein Carport mit Geräteraum zur Verfügung. Die Kaltmiete beträgt 500,00 € inkl. neuer EBK. Hinzu kommt eine Nebenkosten- inkl. Heizkostenvorauszahlung von insgesamt 200,00 €. Der Stromverbrauch wird direkt an das Versorgungsunternehmen gezahlt.
Vermietungsbedingungen: Im Sinne der Vermieter benötigen wir grundsätzlich eine SCHUFA-Auskunft und erwarten Ihre Verdienstbescheinigung der letzten 3 Monate.
Nichtraucher bevorzugt und Haustiere auf Anfrage.
Besondere Ausstattungsmerkmale:
– hochwertige Einbauküche
– Dreifachverglaste Kunststofffenster mit elektr. Außenjalousien
– KFW 55 Niedrigenergiehaus (geringe Heizkosten)
– hochwertige Ausstattung (Design-Fliesen in Holzoptik)
– Carport mit Geräteraum (Wallbox-Anschluss vorhanden)
– zentrale Satellitenanlage
– Fußbodenheizung
– modernes Badezimmerkonzept, barrierefreie Dusche
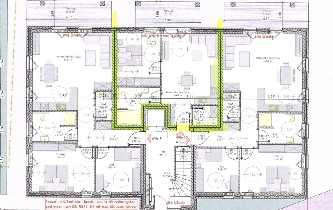
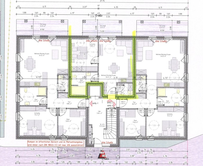
Wohnung:
EG: Wohnung Nr. 2: Flur/Diele, offener Wohn-Ess-/Kochbereich mit EBK, Duschbad, Schlafzimmer, Abstellraum/HWR, Terrasse
Gesamt: Wohn-/Nutzfläche ca. 53 am

Schlafzimmer: 3Baujahr: 1993m²: 190
Einfamilienhaus
vor 2 Wochen