Bitte geben Sie Ihren Benutzernamen oder Ihre E-Mail-Adresse ein. Sie erhalten einen Link, um ein neues Passwort per E-Mail zu erstellen.
Diese Doppelhaushälfte befindet sich direkt „Am See“ in Herzlake und bietet Ihnen eine traumhafte Aussicht. Die Doppelhaushälfte wurde in hochwertiger Bauweise und optimaler Wärmedämmung errichtet. Helle, lichtdurchflutete Räume mit großen fußbodentiefen Fenstern verleihen den Wohnräumen eine besondere, lichtdurchflutete Atmosphäre. Durch die dezentrale Lüftungsanlage wird kontinuierlich Frischluft in das Wohnhaus geleitet, die zuvor durch
Filter gereinigt wird. Für maximalen Komfort sorgt die Fußbodenheizung mit Raumthermostaten in allen Räumen. Die Doppelhaushälfte wurde mit exklusiven Materialien wie Fliesen im gesamten Wohnraum und weißen Innentüren hochwertig ausgestattet. Eine Sanitärausstattung mit ausgewählten Sanitärobjekten und ebenerdigen Duschen runden die Doppelhaushälften ab. Schwarze Armaturen und Schalter verleihen den Bädern eine besondere Note.
Besondere Ausstattungsmerkmale/Durchgeführte Renovierungsmaßnahmen:
– Traumhafter Aussicht auf den See
-Wohnen für Jung und Alt mit gehobener Ausstattung
-Dezentrale Lüftungsanlage
-Carport und Geräteraum
-Fußbodenheizung mit Raumthermostaten in allen Räumen
-Komplette Malerarbeiten und hochwertige Bodenbeläge
-Dreifachverglasung
– Elektrische Jalousien
-Außenanlage gepflastert und bepflanzt
– Barrierefrei
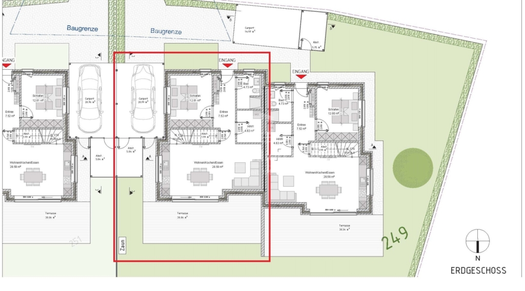
Grundstück: ca. 300qm (inkl. Carport und Gartenanlage)
Gebäude: EG: Flur/Diele, Wohn-/Koch-/Essbereich mit Küchenanschlüsse u. Zugang zur Terrasse, HWR, Duschbad, Schlafzimmer
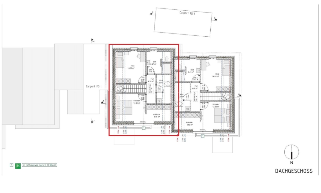
OG: Flur/Diele, Abstellraum, Duschbad, Kinderzimmer, Schlafzimmer mit Ankleidezimmer
Gesamt: Wohn-/Nutzfläche ca. 110qm
