Bitte geben Sie Ihren Benutzernamen oder Ihre E-Mail-Adresse ein. Sie erhalten einen Link, um ein neues Passwort per E-Mail zu erstellen.
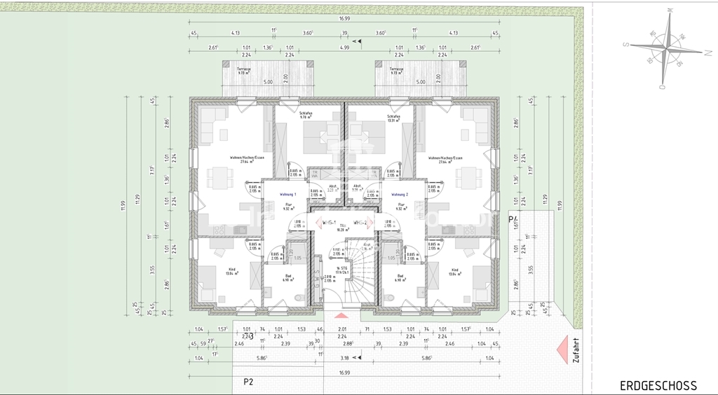
Leben Sie Ihren Traum an der Küste! Diese Neubau Erdgeschosswohnung wird schlüsselfertig in einer 1a Lage von Carolinensiel/Harlesiel erstellt. Das Mehrfamilienhaus besteht insgesamt aus vier Eigentumswohnungen und wird im Jahr 2024 in konventioneller, ortstypischer Massivbauweise fertigstellt. Die gehobene Ausstattung dieser Wohnung erstreckt sich über: Kunststofffenster mit Dreifachverglasung, Außenjalousien mit Elektroantrieb, Fußbodenheizung in jedem Raum, dezentrale Be-/u. Entlüftungsanlage, hochwertige weiße Innentüren, gute Sanitärausstattung, Terrassen aus Betonstein, fertig angelegter Garten (Rasen und Pflanzen), fertig gepflasterter Hauszugang und PKW-Einstellplatz. Eine Einbauküche kann gegen Aufpreis erworben werden. Jede Wohneinheit verfügt über einen eigenen PKW-Einstellplatz und sep. Versorgungsanschlüssen (Wärmemengenzähler, Wasser, Strom). Beheizt wird die Immobilie durch eine energieeffiziente Luft-Wärme-Pumpe. Diese seltene Gelegenheit überzeugt durch ein gelungenes Raumkonzept und einer wohl einmaligen Lage Nähe des Hafens Harlesiel.
Besonderheiten/Ausstattungsmerkmale:
-Nähe Hafen Harlesiel und Carolinensiel
-sep. Versorgungsanschlüsse für jede Wohneinheit
-Verwendung hochwertiger Baumaterialien
-Fußbodenheizung
-dezentrale Be-/u. Entlüftungsanlage
-dreifachverglaste Kunststofffenster
-PKW-Stellplatz
-Einbauküche (gegen Aufpreis)
-Fertigstellung 2024
-weiße Innentüren im
-Bodenbeläge (Auswahl zwischen Fliesen oder Vinyl-Design-Belag)
-inkl. Maler-/Raumarbeiten
Grundstück: Gem. Eigentum (Terrasse, PKW-Einstellplatz, kleine Gartenanlage)
Gebäude: EG: Flur/Diele, offener Wohn-/Essbereich mit Küchenanschlüssen, Duschbad mit WC, Abstellraum, 2 x Schlafzimmer, Terrasse
Gesamt: Wohn-/Nutzfläche 75,72qm; Wohnung Nr. 02

Schlafzimmer: 2Baujahr: 2024m²: 71
Etagenwohnung
vor 4 Wochen
Carolinensiel- Nähe Strand! Schlüsselfertige Neubau EG-Wohnung Nr. 02 mit Terrasse und PKW-Stellplatz in bevorzugter Küstenlage! - 26409 Wittmund / Carolinensiel
Carolinensiel- Nähe Strand! Schlüsselfertige Neubau EG-Wohnung Nr. 02 mit Terrasse und PKW-Stellplatz in bevorzugter Küstenlage! - 26409 Wittmund / Carolinensiel