Bitte geben Sie Ihren Benutzernamen oder Ihre E-Mail-Adresse ein. Sie erhalten einen Link, um ein neues Passwort per E-Mail zu erstellen.
Leben Sie Ihren Traum an der Küste! Diese Neubau Erdgeschosswohnung wird schlüsselfertig in einer 1a Lage von Carolinensiel/Harlesiel erstellt. Das Mehrfamilienhaus besteht insgesamt aus vier Eigentumswohnungen und wird im Jahr 2023 in konventioneller, ortstypischer Massivbauweise fertigstellt. Die gehobene Ausstattung dieser Wohnung erstreckt sich über: Kunststofffenster mit Dreifachverglasung, Außenjalousien mit Elektroantrieb, Fußbodenheizung in jedem Raum, dezentrale Be-/u. Entlüftungsanlage, hochwertige weiße Innentüren, gute Sanitärausstattung, Terrassen aus Betonstein, fertig angelegter Garten (Rasen und Pflanzen), fertig gepflasterter Hauszugang und PKW-Einstellplatz. Eine Einbauküche kann gegen Aufpreis erworben
werden. Jede Wohneinheit verfügt über einen eigenen PKW-Einstellplatz und sep. Versorgungsanschlüssen (Wärmemengenzähler, Wasser, Strom). Beheizt wird die Immobilie durch eine energieeffiziente Luft-Wärme-Pumpe. Diese seltene Gelegenheit überzeugt durch ein gelungenes Raumkonzept und einer wohl einmaligen Lage Nähe des Hafens Harlesiel.
Besonderheiten/Ausstattungsmerkmale:
-Nähe Hafen Harlesiel und Carolinensiel
-Sep. Versorgungsanschlüsse für jede Wohneinheit
-Verwendung hochwertiger Baumaterialien
-Fußbodenheizung, Dezentrale Be-/u. Entlüftungsanlage, Dreifachverglaste Kunststofffenster, PKW-Stellplatz
-Einbauküche (gegen Aufpreis)
-Fertigstellung 2023
-Weißen Innentüren
-Bodenbeläge (Auswahl zwischen Fliesen oder Vinyl-Design-Belag)
-Inkl. Maler-/Raumarbeiten
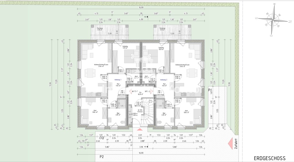
Grundstück: Gem. Eigentum (Terrasse, PKW-Einstellplatz, kleine Gartenanlage)
Gebäude: EG: Flur/Diele, offener Wohn-/Essbereich mit Küchenanschlüssen, Duschbad mit WC, Abstellraum, 2 x Schlafzimmer, Terrasse
Gesamt: Wohn-/Nutzfläche 75,72qm; Wohnung Nr. 01

Carolinensiel- Nähe Strand! Schlüsselfertige Neubau EG-Wohnung Nr. 01 mit Terrasse und PKW-Stellplatz in bevorzugter Küstenlage! - 26409 Wittmund
Carolinensiel- Nähe Strand! Schlüsselfertige Neubau EG-Wohnung Nr. 01 mit Terrasse und PKW-Stellplatz in bevorzugter Küstenlage! - 26409 Wittmund