Bitte geben Sie Ihren Benutzernamen oder Ihre E-Mail-Adresse ein. Sie erhalten einen Link, um ein neues Passwort per E-Mail zu erstellen.
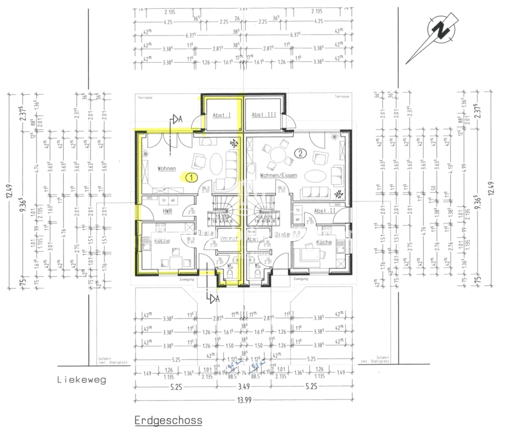
Diese gepflegte Doppelhaushälfte mit freien Blick im rückwärtigen Bereich liegt im Stadtteil „Borssum“. Die Umgebung zeichnet sich durch eine gute Infrastruktur und Einkaufsmöglichkeiten für den täglichen Bedarf aus. Die Immobilie wurde im Jahr 2003/04 in Konventioneller Massivbauweise errichtet und bietet Ihnen 103qm Wohnfläche auf einem 300qm großen Grundstück. Besonders hervorzuheben ist die Süd-West-Terrasse, die zu entspannten Nachmittagen im eigenen Garten einlädt. Die Ausstattung umfasst weiße Kunststofffenster mit Isolierverglasung und Jalousien, eine Fußbodenerwärmung in Küche und Bad (OG) sowie eine moderne Gas-Zentralheizung, die 2023 erneuert wurde. Die PV-Anlage steht nicht im Eigentum und wurde für 100,59€ mtl. gemietet. Gerne überzeugen wir Sie in einem persönlichen Besichtigungstermin vom Platzangebot dieser Immobilie.
Besondere Ausstattungsmerkmale/Durchgeführte Renovierungsmaßnahmen:
-2023 Gas-Z.-Heizung erneuert
-Süd-West Terrasse
-Fußbodenerwärmung in der Küche und Bad (OG)
– Dachboden ausbaufähig, bereits isoliert
– Gewächshaus mit 3500 Wassertank, Pumpe
– Rasenmäher
Grundstüca. 300qm (Gartenanlage, Süd-West Terrasse, Blockhaus)
Gebäude:
EG:Flur/Diele, Gäste-WC, Abstellraum, Küche, Wohnzimmer, Terrasse , HWR
OG:Flur/Diele, Elternschlafzimmer, Badezimmer, Abstellraum/Heizungsraum, Kinderzimmer
DG: Stauraum
Gesamt: Wohn-/Nutzfläche ca. 103qm

Schlafzimmer: 16Baujahr: 1880m²: 774
Einfamilienhaus
vor 4 Monaten
Schlafzimmer: 2Baujahr: 1967m²: 67
Etagenwohnung
vor 6 Monaten
Grundstück (Wohnbebauung)
vor 6 Monaten