Vergleiche Einträge

Aufgepasst! Bauplatz mit ca. 20m Straßenfront

26632 Ihlow,
Kaufpreis 79.900€
  • Icon
    Immobilien-Nr.
    P1404
  • Icon
    Grundstück
    904 m²

Jetzt Exposé anfordern

Beschreibung

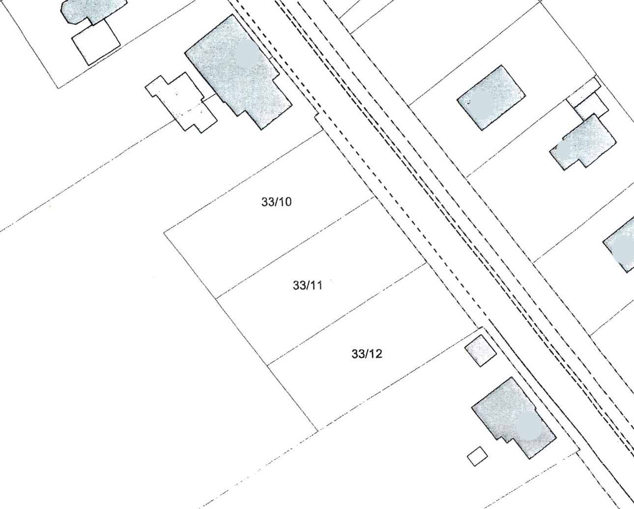
Das Grundstück mit rückwärtig freiem Blick bemisst ca. 904qm (inkl. Oberflächenentwässerungsgraben) und befindet sich in 26632 Ihlow. Die Straßenfront bemisst ca. 20m. Infrastrukturelle Einrichtungen wie Ärzte, Schulen, Einkaufmöglichkeiten uvm. sind in wenigen Autominuten erreichbar.

Wir haben das Angebot nach bestem Wissen zusammengestellt. Es fundiert auf den Angaben des Eigentümers, welche vor Vertragsabschluss ggf. vom Käufer neu zu prüfen sind.

Die Maklerprovision beträgt für den Käufer 2,975% von dem Kaufpreis inklusive der gesetzlichen MwSt..

Objekt:
Bauplatz mit jeweils ca. 20m Straßenfront

Lage:
26632 Ihlow (ca. 10 Autominuten nach Aurich, Nähe zu infrastrukturellen Einrichtungen)

Grundstück:
ca. 904qm

Lage und Umfeld

26632 Ihlow (ca. 10 Autominuten nach Aurich, Nähe zu infrastrukturellen Einrichtungen)

Courtage

2,975% inkl. ges. MwSt. auf den Kaufpreis ist mit Zustandekommen des Kaufvertrages (notarieller Vertragsabschluß) verdient und fällig. Die Vermittelnden und/oder Nachweisenden, BS Immobilien Kontor Büürma GmbH und ggf. deren Beauftragter, erhalten unmittelbaren Zahlungsanspruch gegenüber dem Käufer (Vertrag zugunsten Dritter, § 328 BGB). Alle Angaben sind ohne Gewähr und basieren ausschließlich auf Informationen, die uns von unserem Auftraggeber zur Verfügung gestellt wurden. Wir übernehmen keine Gewähr für die Vollständigkeit, Richtigkeit und Aktualität dieser Angaben. Die Grunderwerbsteuer, Notar- und Grundbuchkosten sind vom Käufer zu tragen. Im übrigen gelten unsere allgemeinen Geschäftsbedingungen. Irrtum und Zwischenverkauf vorbehalten.

Weitere Details

  • Courtage: 2,975% inkl. ges. MwSt.
  • Erstellt am: 2024-01-18 11:48:08
  • Verkauft am: 2024-04-05

ICH FREUE MICH AUF IHRE ANFRAGE

Frerich Büürma

Standort Papenburg

Frerich Büürma
Deverweg 47
26871 Papenburg
0173 - 283 44 61
04961 - 43 38

Kontakt
aufnehmen

Anfrage zu diesem Objekt

Ähnliche Objekte

Schlafzimmer: 3Baujahr: 1993m²: 190

Einfamilienhaus

Dennis Büürma

vor 1 Monat

675.000€

Schlafzimmer: 3Baujahr: 1993m²: 190

Icon Grundstücksgröße 12641 m²
Objektnr.: E19B62500
675.000€

Nicht die passende Immobilie gefunden?

Drucken oder teilen