Bitte geben Sie Ihren Benutzernamen oder Ihre E-Mail-Adresse ein. Sie erhalten einen Link, um ein neues Passwort per E-Mail zu erstellen.
Sie suchen eine Immobilie in Alleinlage? Hier werden Sie fündig! Eingebettet und umgeben von einem alten Baumbestand präsentiert sich dieses besondere Immobilienangebot auf einem ca. 4.480qm großes Grundstück. Die Immobilie wurde 1957 in konventioneller Massivbauweise mit einem Satteldach als Schulgebäude erstellt. Aufwendig und mit viel Liebe zum Detail bauten die derzeitigen Eigentümer 2002 die Immobilie zu einem Wohnhaus mit insgesamt drei Wohneinheiten um. Die Hauptwohnung erstreckt sich mit über 180qm über den seitlichen Flügel und dem „Hinterhaus“. Die derzeit vermieteten Einliegerwohnungen mit ca. 70qm im Erdgeschoss u. 55qm im Obergeschoss befinden sich im „Vorderhaus“. Eine Zusammenlegung der Wohneinheiten ist ohne größeren baulichen Aufwand möglich. Genießen Sie vom großzügigen, offenen Wohn-/Essbereich einen traumhaften Panoramablick in die Landschaft. Die großzügige angelegte Terrasse mit ca. 120qm lädt zum Entspannen & Relaxen ein. Das Nebengebäude (6m x9m) bietet sich ideal zur Unterstellung eines Bootes oder Wohnmobils an. Die Kunststofffenster sind mit einer Isolierverglasung ausgestattet. Beheizt wird die Immobilie durch zwei Gas-Z.-Heizungen. Eine Immobilie für Menschen die Wohnqualität mit Lebensqualität Verbinden und dieses seltene Immobilienangebot zu schätzen wissen.
-2002 Sanierung, Heizkörper, Bad, Elektrik erneuert
-2006 Kernsanierung der Hauptwohnung: Elektrik, Leitungen, Heizung, Bad, Estrich teilweise
-2006 Brennwert-Therme Hauptwohnung erneuert
-2015 Brennwert-Therme Vorderhaus (Einliegerwohnungen) erneuert
-2017 Dach erneuert
-2018 Schlafzimmer saniert mit Wärmeverbundsystem
– Zwischendecke der Immobilie gedämmt
-2019 Haustür erneuert, Fenster der EG-Wohnung überwiegend erneuert
– OG-Wohnung Gaubenfenster erneuert
-2020 Gäste Bad saniert
-2021 Kläranlage erneuert
-Nebengebäude mit 6m x 9m
-Alter Baumbestand, eigene Auffahrt, Alleinlage
-Kaminofen im Wohnzimmer
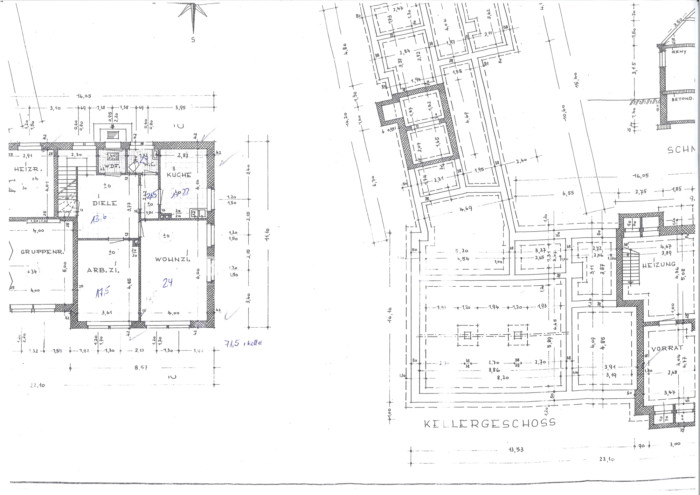
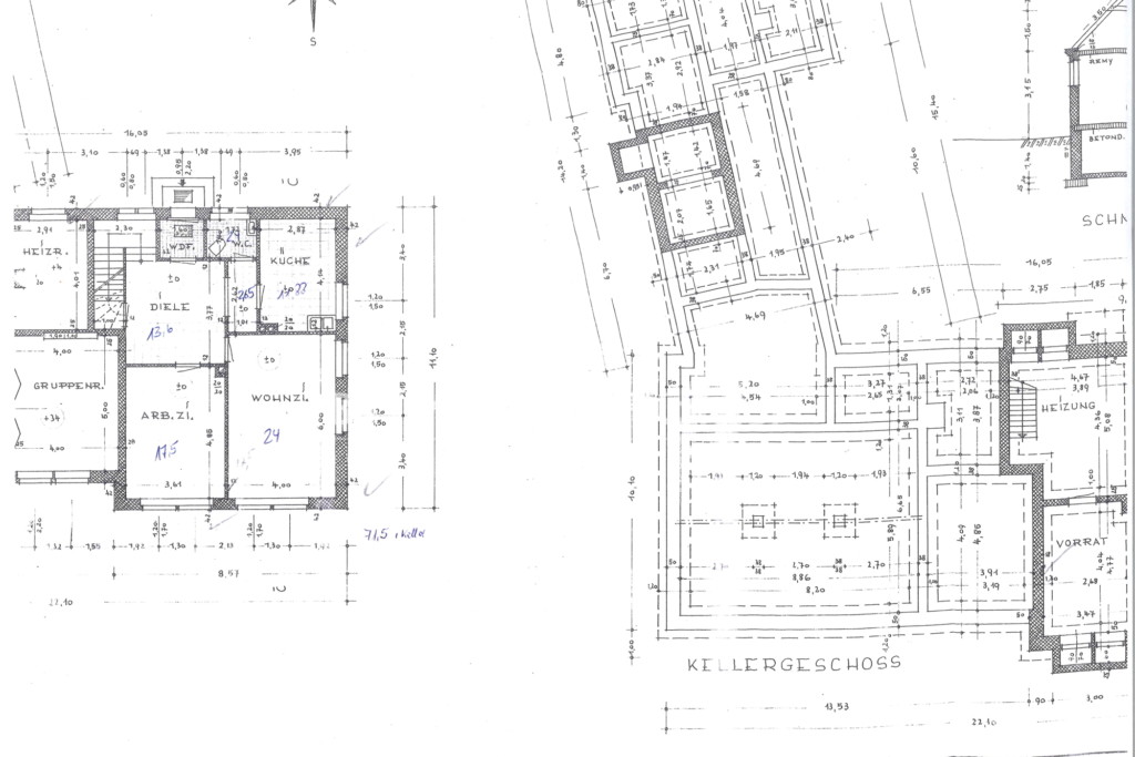
Hauptwohnung: EG: Flur/Diele, Elternschlafzimmer, Vollbad, Gäste Bad mit Dusche, Fitnessraum,Abstellraum, Kinderzimmer, gr. Wohnzimmer mit Ofen, Küche; Wfl. ca. 180qm
OG: Ausbaureserve mit ca. 80qm
ELW EG: Flur/Diele, Duschbad mit WC, Küche, Wohnstube mit Zugang zur Terrasse, Schlafzimmer; Wfl. ca. 70qm
ELW OG: Flur/Diele, Vollbad, offener Wohn-/ Essbereich mit Küche, Elternschlafzimmer; Wfl. ca. 55qm
KG: 2x Kellerraum
Gesamt: Wohnfläche 300qm
