Bitte geben Sie Ihren Benutzernamen oder Ihre E-Mail-Adresse ein. Sie erhalten einen Link, um ein neues Passwort per E-Mail zu erstellen.
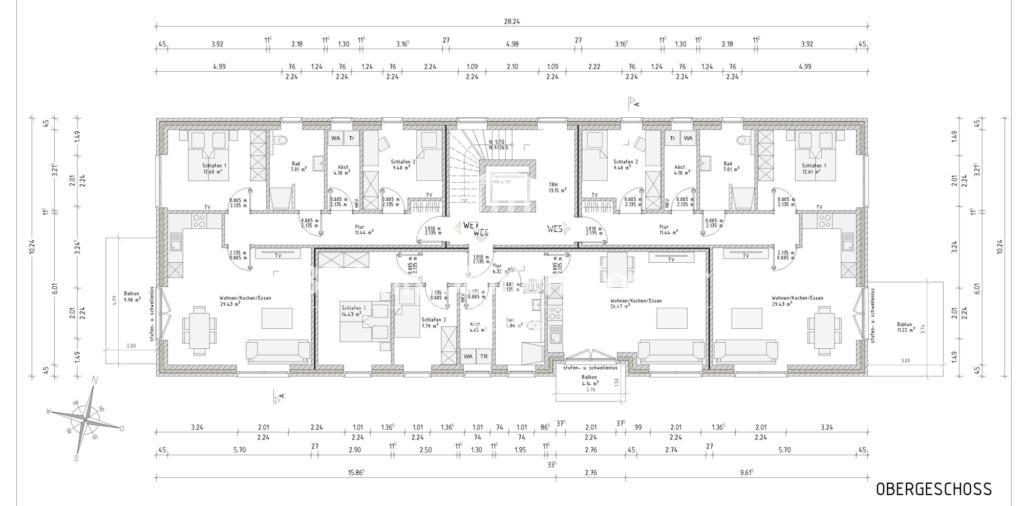
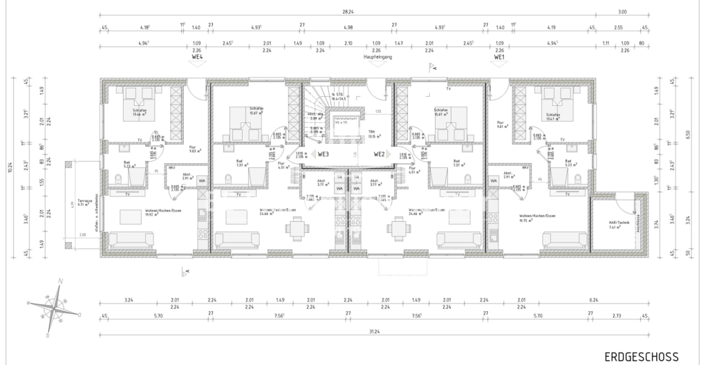
Dieser exklusive Neubau wird Sie begeistern! Die Neubau-Erdgeschoss-Wohnung wird schlüsselfertig in einer zentralen Wohnlage von Rhauderfehn in ansprechender, moderner Architektur erstellt. Auf einem großzügigen Grundstück werden neun barrierefreie, hochwertige Wohnungen für Jung und Alt erstellt. Die Fertigstellung des Gebäudes erfolgt im Jahr 2026. Die ansprechende Architektur und das durchdachte Raumkonzept bieten Wohnkomfort auf höchstem Niveau in zentraler Lage. Sämtliche Geschäfte für den täglichen Bedarf sowie Apotheken, Bildungseinrichtungen, Bäcker, Ärzte können Sie bequem erreichen. Die Erdgeschoss-Wohnung überzeugt mit einem gelungenen Raumkonzept, einer Terrasse und einer gehobenen Ausstattung. Lassen Sie sich vom lichtdurchfluteten, offenen Wohn-/Essbereich und der hochwertigen Bauausführung überzeugen. Beheizt wird das Objekt durch eine Luft-Wärmepumpe. Die Kunststofffenster sind dreifachverglast und mit elektrischen Jalousien ausgestattet.
Aufstellung der Besonderheiten:
-Schlüsselfertige Herstellung 2026
-Dreifachverglaste Fenster mit elektrischen Jalousien
-Fußbodenheizung komplett
-Inkl. Fliesen/Bodenbeläge und Malerarbeiten
-Hochwertige Terrasse
-Wärmepumpe
-Energieeffiziente Bauweise
Grundstück: Gem. Eigentum
Gebäude: EG: Flur/Diele, Abstellraum mit Anschlüssen für Waschmaschine und Trockner, Duschbad mit WC, offener Wohn-/Ess-/Kochbereich mit Küchenanschlüssen und Zugang zur Terrasse, Schlafzimmer
Gesamt: Wohnfläche ca. 53,92qm

Schlafzimmer:: 1Baujahr: 2026m²: 59
Etagenwohnung
vor 3 Monaten
Schlafzimmer: 2Baujahr: 2026m²: 78
Etagenwohnung
vor 2 Monaten
Schlafzimmer: 2Baujahr: 2026m²: 92
Einfamilienhaus
vor 9 Monaten