Bitte geben Sie Ihren Benutzernamen oder Ihre E-Mail-Adresse ein. Sie erhalten einen Link, um ein neues Passwort per E-Mail zu erstellen.
Das Einfamilienhaus wurde im Jahr 2000 in konventioneller Massivbauweise mit Satteldach errichtet. Das sep. Einfamilienhaus (siehe Luftbilder) kann auf Wunsch ebenfalls erworben. Beide Häuser verfügen über separate Eingänge und über getrennte Versorgungsanschlüsse für Gas, Wasser
und Strom. In den vergangenen Jahren wurden zahlreiche Renovierungs- und Modernisierungsarbeiten durchgeführt, die den gepflegten Gesamtzustand der Immobilie zusätzlich unterstreichen. Die weißen Kunststofffenster sind isolierverglast und verfügen über Jalousien. Das Objekt wird durch eine Gas-Z.-Heizung beheizt. Eine Fußbodenerwärmung sorgt für zusätzlichen Wohnkomfort im gesamten Erdgeschoss, mit Ausnahme der Abstellräume, sowie im Badezimmer des Obergeschosses vorhanden. Die Gartenanlage ist pflegeleicht angelegt und mit verschiedenen Pflanzen gestaltet. Der Gartenbereich eröffnet einen freien Blick über umliegende Wiesen und Weiden und schafft damit eine besonders
angenehme Wohnatmosphäre. Eine geräumige Garage bietet Platz für einen Pkw. Darüber hinaus verfügt die Immobilie über einen modernen Glasfaseranschluss. Pewsum zeichnet sich durch eine ausgewogene Infrastruktur aus und bietet zahlreiche Ärzte sowie diverse Einkaufsmöglichkeiten für den täglichen Bedarf. Hervorzuheben sind der gepflegte Allgemeinzustand sowie die attraktive, ruhige und dennoch zentrale Wohnlage, die dieses Angebot besonders reizvoll machen.
Besondere Ausstattungsmerkmale/Durchgeführte Renovierungsmaßnahmen:
-2018 Küche erneuert
-2023 Gas-Z.-Heizung erneuert
-2024 Terrasse verlängert (ca. 8,50qm x 3,50m)
-Glasfaseranschluss
-Freier Blick im rückwärtigen Bereich
-Geräumige Garage
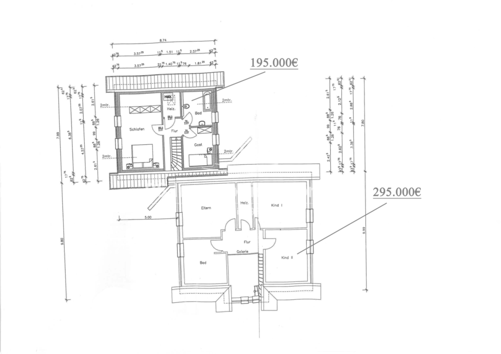
EG: Flur/Diele, 2 x Abstellraum, Duschbad mit WC, Wohnzimmer, große Wohnküche mit Kochinsel
OG:Flur/Diele, Vollbad, 2 x Kinderzimmer, Elternschlafzimmer, Heizungsraum
Gesamt: Einfamilienhaus ca. 167qm Wohn-/Nutzfläche

Schlafzimmer: 2Baujahr: 2025m²: 87
Einfamilienhaus
vor 1 Monat
zum Exposé Schlafzimmer: 3Baujahr: 2010m²: 130
Einfamilienhaus
vor 1 Monat
Schlafzimmer: 2Baujahr: 1950m²: 90
Einfamilienhaus
vor 4 Wochen